Postat 26 noiembrie 2025
Vînd teren pe str Piscului
88 000 €
Persoana fizica
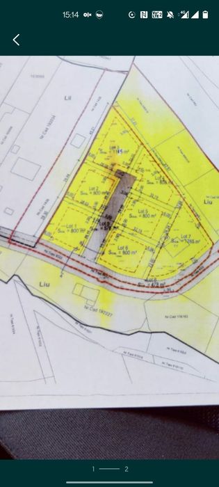
Suprafata utila: 1 100 m²
Extravilan / intravilan: Intravilan
Descriere
Vînd 1100 mp ,zona dealuri pe str Piscului cu utilitățile trase la limita de proprietate și o casă veche cu 1260 mp de teren
ID: 291469210
Contactează vânzătorul
xxx xxx xxx
