Reactualizat la 26 aprilie 2026
VILA TOP!! Dormitor la parter!!
330 000 €
Persoana fizica
Camere: 4 sau mai multe
Suprafata utila: 148 m²
Locuinta mobilata / utilata: Nemobilata / neutilata
Descriere
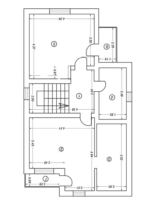
Proprietar, vand vila deosebita p+1etaj,in stil toscan, situata in Valea Lupului str George Cosbuc vis a vis Clatita Hoinar,la Asfalt!! POZITIE TOP!! Amplasata pe un teren in suprafata de 530mp , racordata la toate utilitatile inclusiv canalizare,aceasta are urmatoarele caracteristici: -148 mp utili + 30 mp terase si balcoane
-parter- living cu semineu, bucatarie, dormitor, camera tehnica, baie, hol si 2 terase
-etaj - 2 dormitoare cu balcoane, baie, hol, spatiu depozitare
-pod - depozitare
-curte amenajata cu 2 locuri de parcare
-magazie cu beci
-terase acoperite
Materiale folosite: caramida bks, fundatie cu talpa,fatada izolata cu polistiren grafitat, termopan tripan, tabla mata,incalzire in pardoseala, poarta automatizata.
Casa din imagini este predata, urmatoarea se afla in stadiul de construire cu predare august 2026 si cu posibilitate personalizare finisaje. Exclus Agentii!
-parter- living cu semineu, bucatarie, dormitor, camera tehnica, baie, hol si 2 terase
-etaj - 2 dormitoare cu balcoane, baie, hol, spatiu depozitare
-pod - depozitare
-curte amenajata cu 2 locuri de parcare
-magazie cu beci
-terase acoperite
Materiale folosite: caramida bks, fundatie cu talpa,fatada izolata cu polistiren grafitat, termopan tripan, tabla mata,incalzire in pardoseala, poarta automatizata.
Casa din imagini este predata, urmatoarea se afla in stadiul de construire cu predare august 2026 si cu posibilitate personalizare finisaje. Exclus Agentii!
ID: 290637253
Contactează vânzătorul
xxx xxx xxx
Localitate
Valea Lupului
Iasi