Reactualizat la 28 aprilie 2026
Vilă Modernă cu 3 Dormitoare, 4 Bai, Birou și Curte Spațioasă în Bragadiru - Safirului
230 000 €
Firma
Camere: 4 sau mai multe
Suprafata utila: 122 m²
Locuinta mobilata / utilata: Nemobilata / neutilata
Descriere
Casă individuală P+1E de vânzare – Ansamblu privat exclusivist în Bragadiru, zona Safirului – Prelungirea Ghencea
Adresa: Str. Safirului nr. 10
TVA 21% Inclus
Suprafață teren: între 243-433mp
Tip locuință: casă individuală (NU duplex, NU înșiruită)
Direct de la dezvoltator – fără comision!
- Localizare premium: acces rapid la Centura București, Metrou Raul Doamnei și Parcul Ghidigeni (locuri de joacă, spații verzi).
- Străzi asfaltate, drum interior de 7 m lățime și 2 locuri de parcare incluse.
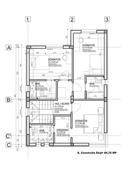
Compartimentare modernă și spațioasă
• 3 dormitoare (fiecare cu baie matrimonială)
• 3 băi elegante
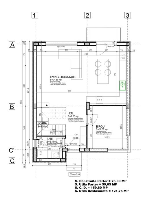
• 1 birou separat – perfect pentru work from home
• Living generos + bucătărie separată
• Terasă de 12 mp
Dotări Premium și construcție de calitate
• Structură pe cadre din beton armat și cărămidă Porotherm
• Izolație termică avansată, placă de beton peste etaj
• Încălzire în pardoseală (parter + etaj)
• Ferestre mari, tâmplărie Rehau și sticlă tripan
• Priză pentru încărcare mașină electrică
• Finisaje moderne la alegere (buget inclus)
• Obiecte sanitare premium: Grohe, baterii negre, duș walk-in
Utilități complete
• Apă, canalizare
• Gaze naturale
• Energie electrică
• Internet fibră optică – viteză ridicată
Facilități în zonă
• Magazine: Kaufland, Lidl, Mega Image, Penny, Pepco, McDonald’s
• Școli, grădinițe, săli de fitness
• Acces rapid la transport STB
Programează o vizionare acum: primeresidencebragadiru.ro
- Locuința ideală pentru familia ta – într-un cartier liniștit, sigur și bine conectat!
Căutări asociate: casă individuală Bragadiru, case noi Prelungirea Ghencea, ansamblu rezidențial exclusivist Ilfov, case de vânzare langa Bucuresti, casă cu teren propriu Bragadiru, P+1E, berceni, domnești, clinceni, popești-leordeni, chiajna, ciorogârla, dragomirești, bolintin, cornetu, măgurele, vârteju, mogoșoaia, chitila, băcu, joita, otopeni, tunari.
Adresa: Str. Safirului nr. 10
TVA 21% Inclus
Suprafață teren: între 243-433mp
Tip locuință: casă individuală (NU duplex, NU înșiruită)
Direct de la dezvoltator – fără comision!
- Localizare premium: acces rapid la Centura București, Metrou Raul Doamnei și Parcul Ghidigeni (locuri de joacă, spații verzi).
- Străzi asfaltate, drum interior de 7 m lățime și 2 locuri de parcare incluse.
Compartimentare modernă și spațioasă
• 3 dormitoare (fiecare cu baie matrimonială)
• 3 băi elegante
• 1 birou separat – perfect pentru work from home
• Living generos + bucătărie separată
• Terasă de 12 mp
Dotări Premium și construcție de calitate
• Structură pe cadre din beton armat și cărămidă Porotherm
• Izolație termică avansată, placă de beton peste etaj
• Încălzire în pardoseală (parter + etaj)
• Ferestre mari, tâmplărie Rehau și sticlă tripan
• Priză pentru încărcare mașină electrică
• Finisaje moderne la alegere (buget inclus)
• Obiecte sanitare premium: Grohe, baterii negre, duș walk-in
Utilități complete
• Apă, canalizare
• Gaze naturale
• Energie electrică
• Internet fibră optică – viteză ridicată
Facilități în zonă
• Magazine: Kaufland, Lidl, Mega Image, Penny, Pepco, McDonald’s
• Școli, grădinițe, săli de fitness
• Acces rapid la transport STB
Programează o vizionare acum: primeresidencebragadiru.ro
- Locuința ideală pentru familia ta – într-un cartier liniștit, sigur și bine conectat!
Căutări asociate: casă individuală Bragadiru, case noi Prelungirea Ghencea, ansamblu rezidențial exclusivist Ilfov, case de vânzare langa Bucuresti, casă cu teren propriu Bragadiru, P+1E, berceni, domnești, clinceni, popești-leordeni, chiajna, ciorogârla, dragomirești, bolintin, cornetu, măgurele, vârteju, mogoșoaia, chitila, băcu, joita, otopeni, tunari.
ID: 302880010
Contactează vânzătorul
xxx xxx xxx
Localitate
Bragadiru
Bucuresti - Ilfov