Postat 01 decembrie 2025
Vila Mobexpert Homes
289 000 €
Prețul e negociabil
Persoana fizica
Camere: 4 sau mai multe
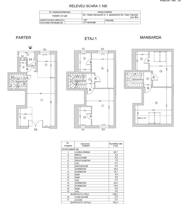
Suprafata utila: 143 m²
Locuinta mobilata / utilata: Complet
Descriere
Casă de excepție în complexul rezidențial Mobexpert Pipera – Investiție profitabilă cu randament de 6,8%
Proprietatea este pe firma, pretul nu include TVA si vanzarea poate fi facuta fara TVA (taxare inversa) catre o alta firma.
Vă prezentăm o oportunitate rară: o casă elegantă și modernă situată în complexul rezidențial Mobexpert din Pipera, la doar câțiva pași de cele mai prestigioase școli private din București – Școala Americană, Olga Gudynn, British School, Cambridge – și în imediata apropiere a trei centre comerciale de top: București Mall, Jolie Ville și Pipera Plaza.
Această proprietate este ideală atât pentru locuit, cât și ca investiție, putând fi închiriată pentru 1.700 EUR + TVA/lună, cu un randament anual atractiv de 6,8%.
Detalii proprietate:
• Suprafata utila 143mp
• include in proprietate doua locuri de parcare situate in fata casei
• centrala proprie, in condensatie si incalzire in pardoseala cu termostat in fiecare camera.
• aer conditionat in fiecare camera
• 3 dormitoare spațioase, fiecare cu baie proprie, plus o baie de serviciu
• 2 etaje inteligent compartimentate
• Parter cu living spatios si bucatarie moderna si baie.
• Etaj 1 este format dintr-un dormitor matrimonial cu baie proprie si un alt dormitor cu baie
• Etajul 2 include al treilea dormitor cu baie si un spațiu deschis generos, perfect pentru relaxare, birou sau zonă de joacă
• Bucătărie complet utilată cu electrocasnice de top
• Mobilier premium de la Rovere, Mobexpert și piese realizate pe comandă, pentru un design sofisticat și unitar
Amplasată într-un cartier liniștit, modern și bine cotat, această casă combină confortul, stilul și funcționalitatea, fiind perfectă pentru o familie care apreciază educația de calitate și accesul facil la facilități premium sau pentru investitori în căutare de proprietăți cu randament stabil
Proprietatea este pe firma, pretul nu include TVA si vanzarea poate fi facuta fara TVA (taxare inversa) catre o alta firma.
Vă prezentăm o oportunitate rară: o casă elegantă și modernă situată în complexul rezidențial Mobexpert din Pipera, la doar câțiva pași de cele mai prestigioase școli private din București – Școala Americană, Olga Gudynn, British School, Cambridge – și în imediata apropiere a trei centre comerciale de top: București Mall, Jolie Ville și Pipera Plaza.
Această proprietate este ideală atât pentru locuit, cât și ca investiție, putând fi închiriată pentru 1.700 EUR + TVA/lună, cu un randament anual atractiv de 6,8%.
Detalii proprietate:
• Suprafata utila 143mp
• include in proprietate doua locuri de parcare situate in fata casei
• centrala proprie, in condensatie si incalzire in pardoseala cu termostat in fiecare camera.
• aer conditionat in fiecare camera
• 3 dormitoare spațioase, fiecare cu baie proprie, plus o baie de serviciu
• 2 etaje inteligent compartimentate
• Parter cu living spatios si bucatarie moderna si baie.
• Etaj 1 este format dintr-un dormitor matrimonial cu baie proprie si un alt dormitor cu baie
• Etajul 2 include al treilea dormitor cu baie si un spațiu deschis generos, perfect pentru relaxare, birou sau zonă de joacă
• Bucătărie complet utilată cu electrocasnice de top
• Mobilier premium de la Rovere, Mobexpert și piese realizate pe comandă, pentru un design sofisticat și unitar
Amplasată într-un cartier liniștit, modern și bine cotat, această casă combină confortul, stilul și funcționalitatea, fiind perfectă pentru o familie care apreciază educația de calitate și accesul facil la facilități premium sau pentru investitori în căutare de proprietăți cu randament stabil
ID: 286810015
Contactează vânzătorul
xxx xxx xxx
Localitate
Voluntari
Bucuresti - Ilfov