Postat 12 octombrie 2025
Vanzare teren 21.928 mp și cladiri 3.407 mp depozitare/productie/biro
4 699 500 €
Persoana fizica
Suprafata utila: 21 928 m²
Extravilan / intravilan: Intravilan
Descriere
Imobilul este situat in Pitesti, str. Petrochimistilor, zona intrarea Arpechim, ceea ce permite accesul rapid si facil catre orasul Pitesti, precum si conexiuni directe catre autostrada Pitesti-Bucuresti sau DN catre Craiova, Brasov ori alte orase importante ale tarii. In vecinatate sunt 2 statii pentru linii de autobuz care fac legatura cu orasul Pitesti. În curând, in apropiere, v-a incepe dezvoltarea celui de al doilea magazin Dedeman din Pitești.
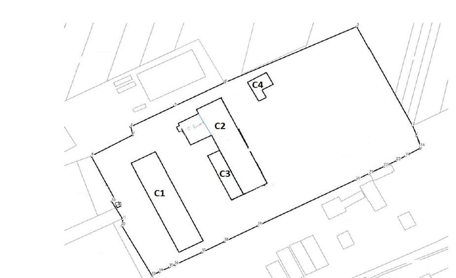
Proprietatea este formata din:
- teren intravilan curti constructii cu o suprafata totala de 21.928 mp si
- 5 cladiri realizata pe stalpi de beton cu pereti structurali din zidarie de cărămidă sau BCA.
Aceste constructii au urmatoarele caracteristici:
- C1: Suprafata = 1.362 mp, L= 73 m, l = 23 m, h= 4.5 m, impartita in mai multe incaperi cu suprafete intre 104 si 420 mp. Cladirea are rampe de incarcare pe ambele lungimi.
- C2: Suprafata = 1.525 mp, L= 72 m, l = 18 m, h= 8.5 m. Clădirea are 3 porți de acces TIR.
- C3: Suprafata = 334 mp, cu regim de inaltime D+P+1 si destinatie de birouri / administrativ / depozitare.
- C4: Suprafata = 182 mp, L= 24 m, l = 7.6 m, h= 7m.
- C5: Cabina poarta = 4 mp.
Sistem de hidranți exteriori.
Amplasamentul este imprejmuit cu gard de beton cu inaltime de 2,6 m, iar curtea este pavata cu platforma betonata pe o suprafata de 6000 mp, permitand accesul mijloacelor de transport pentru incarcare si descarcare.
Utilitati: curent electric (PTAB cu transformator propriu de 1600 KVA), apa, canalizare, gaze, internet prin fibra optica, etc.
Pret negociabil.
Proprietatea este formata din:
- teren intravilan curti constructii cu o suprafata totala de 21.928 mp si
- 5 cladiri realizata pe stalpi de beton cu pereti structurali din zidarie de cărămidă sau BCA.
Aceste constructii au urmatoarele caracteristici:
- C1: Suprafata = 1.362 mp, L= 73 m, l = 23 m, h= 4.5 m, impartita in mai multe incaperi cu suprafete intre 104 si 420 mp. Cladirea are rampe de incarcare pe ambele lungimi.
- C2: Suprafata = 1.525 mp, L= 72 m, l = 18 m, h= 8.5 m. Clădirea are 3 porți de acces TIR.
- C3: Suprafata = 334 mp, cu regim de inaltime D+P+1 si destinatie de birouri / administrativ / depozitare.
- C4: Suprafata = 182 mp, L= 24 m, l = 7.6 m, h= 7m.
- C5: Cabina poarta = 4 mp.
Sistem de hidranți exteriori.
Amplasamentul este imprejmuit cu gard de beton cu inaltime de 2,6 m, iar curtea este pavata cu platforma betonata pe o suprafata de 6000 mp, permitand accesul mijloacelor de transport pentru incarcare si descarcare.
Utilitati: curent electric (PTAB cu transformator propriu de 1600 KVA), apa, canalizare, gaze, internet prin fibra optica, etc.
Pret negociabil.
ID: 280507028
Contactează vânzătorul
xxx xxx xxx
Localitate
Pitesti
Arges