Postat 02 decembrie 2025
~ Vânzare Spațiu Comercial de la proprietar - str. Ciocârliei, Mărăști
498 000 €
Prețul e negociabil
Persoana fizica
Vanzare/Inchiriere: Vanzare
Suprafata utila: 112 m²
Descriere
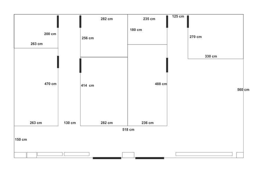
Proprietar, vând spațiu comercial într-o zonă foarte bună (zona Hotel Paradis), cu vitrină la stradă de 14 metri liniari. Se vinde de pe persoană fizică, nu se aplică TVA. Se poate cu sau fără preluare de chiriași.
Detalii proprietate:
• Suprafață utilă: 112 mp
• Două uși de acces din stradă
• Compartimentare din rigips practică și flexibilă: 4 camere, 2 băi (una cu cabină de duș), vestiar, zonă de recepție
• Vitrină generoasă de 14 metri liniari la stradă, perfectă pentru vizibilitate și promovare
• Locație foarte bună, trafic auto și pietonal crescut
• Parcări disponibile în fața spațiului
• Curent trifazic
• Aer condiționat – 2 unități
• Situație juridică clară, fără sarcini, apare ca spațiu comercial în CF.
Detalii proprietate:
• Suprafață utilă: 112 mp
• Două uși de acces din stradă
• Compartimentare din rigips practică și flexibilă: 4 camere, 2 băi (una cu cabină de duș), vestiar, zonă de recepție
• Vitrină generoasă de 14 metri liniari la stradă, perfectă pentru vizibilitate și promovare
• Locație foarte bună, trafic auto și pietonal crescut
• Parcări disponibile în fața spațiului
• Curent trifazic
• Aer condiționat – 2 unități
• Situație juridică clară, fără sarcini, apare ca spațiu comercial în CF.
ID: 296479176
Contactează vânzătorul
xxx xxx xxx
Localitate
Cluj-Napoca
Cluj
