Reactualizat la 07 februarie 2026
Vanzare imobil cu teren total 2.500mp si 2x cladiri lipite SDC 480mp
960 000 €
Firma
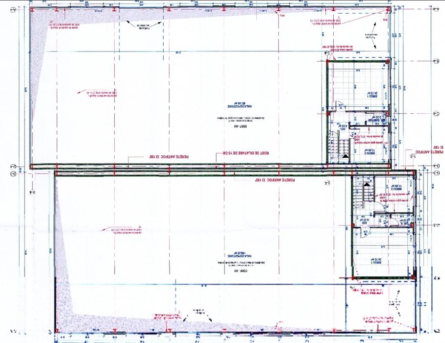
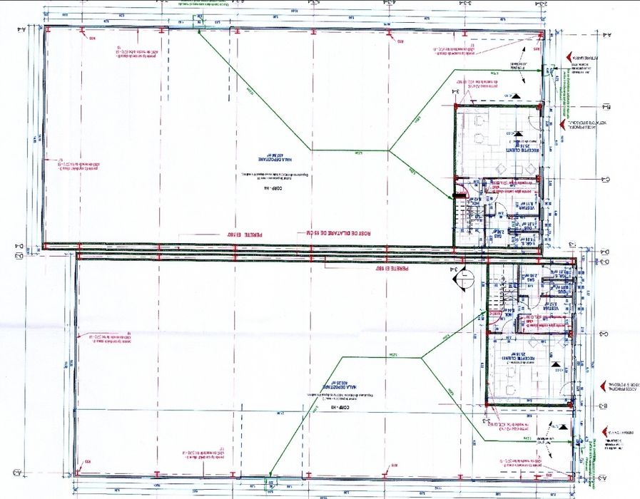
Suprafata construita (m2): 840
Suprafata utila (m2): 740
Suprafata teren (m2): 2 500
Suprafata zona administrativa (m2): 220
Tip proprietate: Spatiu productie, Distributie, Depozit
Inaltime utila (m): 7
Stare: Nou
Anul constructiei: 2025
Numar locuri de parcare: 8
Acces: Aeroport, Zone comerciale, Autostrada, Transport public
Infrastructura de baza: Acces pentru vehicule grele
Alte facilitati: Aer conditionat, Baie privata, Sala de sedinte, Gaze naturale, Zona administrativa
Siguranta: Gard, Supraveghere 24/7, Supraveghere video
Descriere
DISPONIBIL IMEDIAT!
Propunem spre vanzare doua hale/depozite/spatie industriale, situate pe strada Bujorului, in zona de Vest a Bucurestiului, Domnesti - Centura, Ilfov.
Propietatea face parte din proiectul de 4 hale (hale lipite cate doua, avand posibilitatea dublarii suprafetei halei).
Proprietatea ofera o oportunitate unica pentru investitori si antrepenori, ce doresc sa profite de avantajele acestei locatii strategice.
Imobil cu teren cu suprafata totala de 2.500mp si doua cladiri construite in oglinda, fiecare avand suprafata desfasurata de 480 mp.
Fiecare cladire este compusa din depozit – 370mp si birouri – 110mp (parter – Receptie 25mp + Grupuri sanitare – vestiar 8mp, dus, toaleta, lavoar; etaj – 2 birouri- 12mp respectiv 24mp + Grup sanitar).
Detalii cladiri: accesul se face prin 2 usi tip DRIVE IN, inaltime 7ml, dispus la parter.
Spatiu este construit din structura metalica si panouri sandwich.
Spatiul dispune de facilitati:
apa(put),
canalizare(fosa),
curent electric 220 – 380kw.
Propunem spre vanzare doua hale/depozite/spatie industriale, situate pe strada Bujorului, in zona de Vest a Bucurestiului, Domnesti - Centura, Ilfov.
Propietatea face parte din proiectul de 4 hale (hale lipite cate doua, avand posibilitatea dublarii suprafetei halei).
Proprietatea ofera o oportunitate unica pentru investitori si antrepenori, ce doresc sa profite de avantajele acestei locatii strategice.
Imobil cu teren cu suprafata totala de 2.500mp si doua cladiri construite in oglinda, fiecare avand suprafata desfasurata de 480 mp.
Fiecare cladire este compusa din depozit – 370mp si birouri – 110mp (parter – Receptie 25mp + Grupuri sanitare – vestiar 8mp, dus, toaleta, lavoar; etaj – 2 birouri- 12mp respectiv 24mp + Grup sanitar).
Detalii cladiri: accesul se face prin 2 usi tip DRIVE IN, inaltime 7ml, dispus la parter.
Spatiu este construit din structura metalica si panouri sandwich.
Spatiul dispune de facilitati:
apa(put),
canalizare(fosa),
curent electric 220 – 380kw.
ID: 294304116
Contactează vânzătorul
xxx xxx xxx
Localitate
Olteni
Bucuresti - Ilfov