Postat 21 octombrie 2025
Vanzare casa cuplata cu panorama 156 mpu, 2 garaje zona Dambul Rotund
365 000 €
Persoana fizica
Camere: 4 sau mai multe
Suprafata utila: 156 m²
Locuinta mobilata / utilata: Nemobilata / neutilata
Descriere
Direct de la dezvoltator, comision 0% la cumparare!
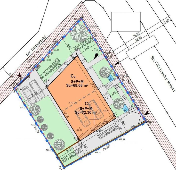
Vanzare casa cuplata cu panorama asupra orasului in zona Dambul Rotund - Cluj-Napoca, reper La Ciuperca. Proprietatea are o suprafata utila de 156 mp, teren in suprafata de 235 mp plus 50 mp langa imobil, desfasurata pe trei niveluri S+P+M plus Pod, avand urmatoarea compartimentare:
Subsol: doua garaje
Parter: zona de living cu bucatarie open space si loc pentru luat masa, debara, baie, terasa
Mansarda inalta: trei dormitoare, hol, baie generoasa
Pod: spatiu pentru depozitare
Distante si interese:
- gradinita privata la 50 de metri
- Scoala Gimnaziala Emil Isac la 700 de metri
- Gara 3 minute
- noul mall Rivus la 7 minute
Proprietatea se vinde la stadiul de semifinisat, cu incalzire prin pardoseala, centrala termica proprie, geamuri termopan cu 7 camere, peretii cu doua maini de glet si lavabil, instalatiile sanitare si electrice trase pe pozitie, acoperis din tabla, iar exteriorul amenajat. Posibilitate achizitie ambele case cuplate. Strada este in curs de asfaltare. Pentru detalii sau informatii suplimentare va stam la dispozitie.
Tel. 0_7_4_9_3_7_9_8_0_9
Vanzare casa cuplata cu panorama asupra orasului in zona Dambul Rotund - Cluj-Napoca, reper La Ciuperca. Proprietatea are o suprafata utila de 156 mp, teren in suprafata de 235 mp plus 50 mp langa imobil, desfasurata pe trei niveluri S+P+M plus Pod, avand urmatoarea compartimentare:
Subsol: doua garaje
Parter: zona de living cu bucatarie open space si loc pentru luat masa, debara, baie, terasa
Mansarda inalta: trei dormitoare, hol, baie generoasa
Pod: spatiu pentru depozitare
Distante si interese:
- gradinita privata la 50 de metri
- Scoala Gimnaziala Emil Isac la 700 de metri
- Gara 3 minute
- noul mall Rivus la 7 minute
Proprietatea se vinde la stadiul de semifinisat, cu incalzire prin pardoseala, centrala termica proprie, geamuri termopan cu 7 camere, peretii cu doua maini de glet si lavabil, instalatiile sanitare si electrice trase pe pozitie, acoperis din tabla, iar exteriorul amenajat. Posibilitate achizitie ambele case cuplate. Strada este in curs de asfaltare. Pentru detalii sau informatii suplimentare va stam la dispozitie.
Tel. 0_7_4_9_3_7_9_8_0_9
ID: 288301286
Contactează vânzătorul