Postat 24 octombrie 2025
Vanzare Apartament tip duplex cu 3 camere Pallady - Victor Brauner
199 000 €
Firma
Compartimentare: Decomandat
Suprafata utila: 113 m²
An constructie: Dupa 2000
Etaj: 10 si peste
Descriere
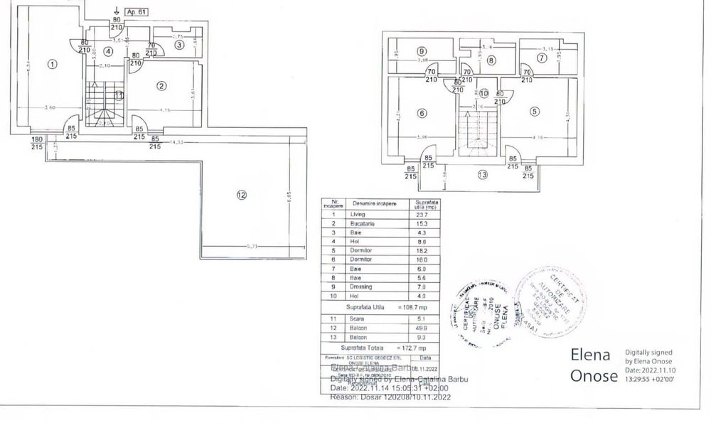
De vânzare – Apartament tip duplex cu 3 camere, terasă generoasă, vedere liberă, Pallady – str. Victor Brauner
Vă prezentăm un apartament tip duplex spațios și modern, situat în zona Theodor Pallady, pe strada Victor Brauner, cuprins pe etajele 11 și 12.
Detalii proprietate:
Suprafață totală: 172,7 mp
Suprafață utilă: 113,8 mp
Terasă foarte generoasă, ideală pentru relaxare sau amenajare cu zonă de lounge
Compartimentare: 3 camere, 3 băi, scară interioară elegantă
Vedere liberă panoramică, cu multă lumină naturală
Se vinde nemobilat, cu băile complet utilate
Centrala proprie
Pretul nu include TVA.
Alte avantaje:
Spațiu aerisit, dispus pe două niveluri – zonă de zi și zonă de noapte bine delimitate
Posibilitate achizitionare locuri de parcare.
Acces facil la mijloace de transport
Aproape de metrou Nicolae Teclu si Complexul comercial Ikea, Auchan, Decathlon și autostrada A2
Vă prezentăm un apartament tip duplex spațios și modern, situat în zona Theodor Pallady, pe strada Victor Brauner, cuprins pe etajele 11 și 12.
Detalii proprietate:
Suprafață totală: 172,7 mp
Suprafață utilă: 113,8 mp
Terasă foarte generoasă, ideală pentru relaxare sau amenajare cu zonă de lounge
Compartimentare: 3 camere, 3 băi, scară interioară elegantă
Vedere liberă panoramică, cu multă lumină naturală
Se vinde nemobilat, cu băile complet utilate
Centrala proprie
Pretul nu include TVA.
Alte avantaje:
Spațiu aerisit, dispus pe două niveluri – zonă de zi și zonă de noapte bine delimitate
Posibilitate achizitionare locuri de parcare.
Acces facil la mijloace de transport
Aproape de metrou Nicolae Teclu si Complexul comercial Ikea, Auchan, Decathlon și autostrada A2
ID: 294165208
Contactează vânzătorul
xxx xxx xxx
Localitate
Catelu
Bucuresti - Ilfov