Postat 07 aprilie 2026
Vânzare apartament 2 camere – Ploiești, zona Albert – Kaufland
115 000 lei
Firma
Descriere
Apartament 2 camere, spațios și foarte bine compartimentat, situat în cartierul Albert – Kaufland, pe o stradă privată, într-o zonă modernă, liniștită, cu acces rapid către magazine, transport, școli și puncte de interes.
În apropiere: Kaufland, MRS Smart, MRS Grădinile, stații de transport în comun, parc, piață, școli, grădinițe, restaurante.
Detalii imobil
Imobil P+3+4R, construit pe structură solidă de beton armat, cu radier general.
- Fundație: beton armat + izolație
- Pereți interior/exterior: cărămidă Porotherm 24 cm
- Izolație exterior: polistiren expandat 15 cm
- Terasă: izolație cu polistiren extrudat 20 cm + hidroizolație
- Lift: Schindler
- Casa scării: finisată cu gresie/granit
- Curte: pavată, spații verzi amenajate + sistem de aspersoare
- Parcare: 25 locuri disponibile
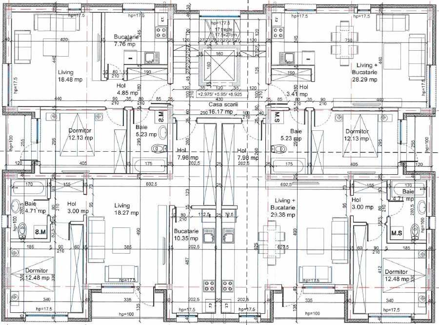
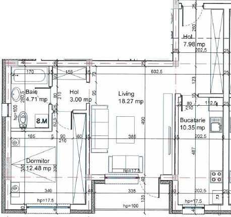
Suprafață & compartimentare
- Suprafață utilă: 62 mp
Compartimentare:
- Hol acces: 7,98 mp
- Hol secundar: 3 mp
- Living + bucătărie: 29,38 mp
- Dormitor: 12,48 mp
- Baie: 4,71 mp
- Logie: 4,5 mp
Finisaje și dotări
- Ușă intrare metalică antiefracție
- Uși interior MDF
- Tâmplărie PVC Salamander, 7 camere, geam tripan
- Glafuri din granit
- Încălzire în pardoseală cu distribuitor
- Centrală termică în condensație
- Gresie și faianță
- Parchet laminat/SPC
- Obiecte sanitare incluse
- Vopsea lavabilă
- Preechipare aer condiționat
- Logie placată cu gresie de exterior
- Balustradă din sticlă duplex
Disponibilități:
- Etaj 1
- Etaj 2
- Etaj 3
Finalizare 2026
Prețuri
- Preț apartament: 115.000 € + TVA 21%
- Loc de parcare: 6.500 € + TVA 21%
* - pozele cu design interior au caracter informativ
În apropiere: Kaufland, MRS Smart, MRS Grădinile, stații de transport în comun, parc, piață, școli, grădinițe, restaurante.
Detalii imobil
Imobil P+3+4R, construit pe structură solidă de beton armat, cu radier general.
- Fundație: beton armat + izolație
- Pereți interior/exterior: cărămidă Porotherm 24 cm
- Izolație exterior: polistiren expandat 15 cm
- Terasă: izolație cu polistiren extrudat 20 cm + hidroizolație
- Lift: Schindler
- Casa scării: finisată cu gresie/granit
- Curte: pavată, spații verzi amenajate + sistem de aspersoare
- Parcare: 25 locuri disponibile
Suprafață & compartimentare
- Suprafață utilă: 62 mp
Compartimentare:
- Hol acces: 7,98 mp
- Hol secundar: 3 mp
- Living + bucătărie: 29,38 mp
- Dormitor: 12,48 mp
- Baie: 4,71 mp
- Logie: 4,5 mp
Finisaje și dotări
- Ușă intrare metalică antiefracție
- Uși interior MDF
- Tâmplărie PVC Salamander, 7 camere, geam tripan
- Glafuri din granit
- Încălzire în pardoseală cu distribuitor
- Centrală termică în condensație
- Gresie și faianță
- Parchet laminat/SPC
- Obiecte sanitare incluse
- Vopsea lavabilă
- Preechipare aer condiționat
- Logie placată cu gresie de exterior
- Balustradă din sticlă duplex
Disponibilități:
- Etaj 1
- Etaj 2
- Etaj 3
Finalizare 2026
Prețuri
- Preț apartament: 115.000 € + TVA 21%
- Loc de parcare: 6.500 € + TVA 21%
* - pozele cu design interior au caracter informativ
ID: 300210984
Contactează vânzătorul
xxx xxx xxx
Localitate
Ploiesti
Prahova