Postat 22 ianuarie 2026
Vânzare apartament 2 camere – Ploiești, zona Albert – Kaufland
105 000 €
Firma
Compartimentare: Decomandat
Suprafata utila: 52 m²
An constructie: Dupa 2000
Etaj: 1
Descriere
Apartament 2 camere situat într-una dintre cele mai apreciate zone ale Ploieștiului, în cartierul Albert – Kaufland, pe o stradă privată, ferită de trafic și înconjurată de case și blocuri noi.
În apropiere: Kaufland, MRS Smart, MRS Grădinile, stații de transport în comun, parc, piață, școli, grădinițe, restaurante.
Detalii imobil
Imobil P+3+4R, construit pe structură solidă din cadre de beton armat, cu radier general.
- Fundație: beton armat, cu polistiren extrudat + hidroizolație
- Pereți interior/exterior: cărămidă Porotherm 24 cm
- Izolație exterioară: polistiren expandat 15 cm
- Terasă: polistiren extrudat 20 cm + hidroizolație + șapă
- Lift: Schindler
- Casa scării: placată cu gresie și faianță
- Curte: pavată, cu spații verzi amenajate și sistem de aspersoare
- Locuri de parcare: 25 locuri disponibile
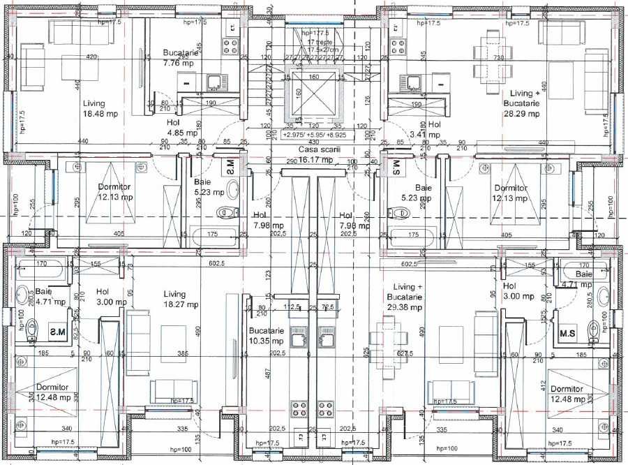
Suprafață & compartimentare
- Suprafață utilă: 52 mp
Compartimentare:
- Hol acces: 3,41 mp
- Living + bucătărie: 28,29 mp
- Dormitor: 12,13 mp
- Baie: 5,23 mp
- Logie: 3,06 mp
Finisaje și dotări
- Ușă intrare metalică antiefracție
- Uși interioare MDF
- Tâmplărie PVC Salamander, 7 camere, geam tripan
- Glafuri din granit
- Încălzire în pardoseală cu distribuitor
- Centrală termică în condensație
- Gresie și faianță
- Parchet laminat
- Obiecte sanitare incluse
- Vopsea lavabilă
- Preechipare aer condiționat
- Logie placată cu gresie de exterior
- Balustradă din sticlă duplex
Disponibilități
- Parter
- Etaj 1
- Etaj 2
- Etaj 3
Finalizare 2026
Preturi
- Preț apartament: 105.000 € + TVA 21%
- Loc de parcare: 6.500 € + TVA 21%
* - pozele cu design interior au caracter informativ
În apropiere: Kaufland, MRS Smart, MRS Grădinile, stații de transport în comun, parc, piață, școli, grădinițe, restaurante.
Detalii imobil
Imobil P+3+4R, construit pe structură solidă din cadre de beton armat, cu radier general.
- Fundație: beton armat, cu polistiren extrudat + hidroizolație
- Pereți interior/exterior: cărămidă Porotherm 24 cm
- Izolație exterioară: polistiren expandat 15 cm
- Terasă: polistiren extrudat 20 cm + hidroizolație + șapă
- Lift: Schindler
- Casa scării: placată cu gresie și faianță
- Curte: pavată, cu spații verzi amenajate și sistem de aspersoare
- Locuri de parcare: 25 locuri disponibile
Suprafață & compartimentare
- Suprafață utilă: 52 mp
Compartimentare:
- Hol acces: 3,41 mp
- Living + bucătărie: 28,29 mp
- Dormitor: 12,13 mp
- Baie: 5,23 mp
- Logie: 3,06 mp
Finisaje și dotări
- Ușă intrare metalică antiefracție
- Uși interioare MDF
- Tâmplărie PVC Salamander, 7 camere, geam tripan
- Glafuri din granit
- Încălzire în pardoseală cu distribuitor
- Centrală termică în condensație
- Gresie și faianță
- Parchet laminat
- Obiecte sanitare incluse
- Vopsea lavabilă
- Preechipare aer condiționat
- Logie placată cu gresie de exterior
- Balustradă din sticlă duplex
Disponibilități
- Parter
- Etaj 1
- Etaj 2
- Etaj 3
Finalizare 2026
Preturi
- Preț apartament: 105.000 € + TVA 21%
- Loc de parcare: 6.500 € + TVA 21%
* - pozele cu design interior au caracter informativ
ID: 296361987
Contactează vânzătorul
xxx xxx xxx
Localitate
Ploiesti
Prahova