Navighează la conținutul principal
Chat

Notificari

Adaugă anunț nou
Vand teren intravilan costuleni covasna
Vand teren intravilan costuleni covasna
Vand teren intravilan costuleni covasna
Postat 11 septembrie 2025

Vand teren intravilan costuleni covasna

21 000 €

Prețul e negociabil

PromoveazăReactualizează

Persoana fizica

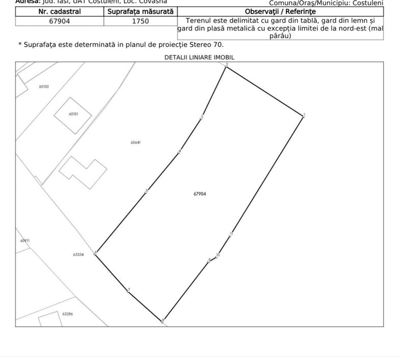
Suprafata utila: 1 750 m²

Extravilan / intravilan: Intravilan

Descriere

Vând teren intravilan
Situat într-o zonă liniștită în centru satului
1750 mp /12€ mp negociabil
Utilitățile ( apa canalizare) în lucru, comuna este în continuă dezvoltare
Intabulat
Alte informații la numărul de telefon 07******14
Coordonatele 47.0061950,27.8500575
ID: 291975241

Contactează vânzătorul

Facebook connected icon

Ioana

Pe OLX din octombrie 2013

Activ ieri la 12:23

xxx xxx xxx

Localitate

Location

Balciu

Iasi

Descarca aplicatia pentru telefonul tau