Reactualizat la 28 februarie 2026
Vand teren cu Puz aprobat si C.U PROIECT DUPLEX
185 000 €
Firma
Suprafata utila: 526 m²
Extravilan / intravilan: Intravilan
Descriere
PREȚ FIX!
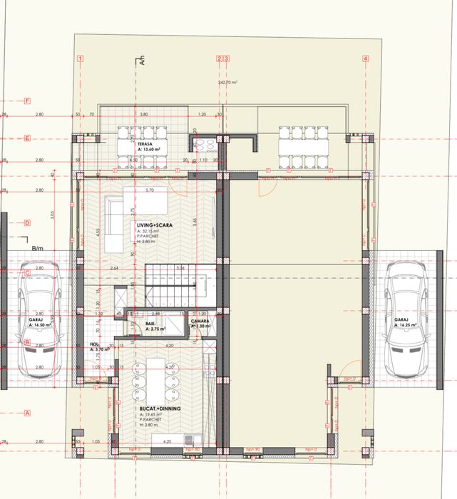
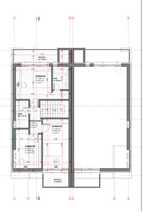
Vând cotă 50%teren 526 mp cu PUZ aprobat cu proiect de duplex compus din subsol parter etaj Practic se vinde proiectul și terenul pentru o unitate locativă . . Proiectul se mai poate modifica înainte de autorizare . Terenul se află în zona Strada Povarnisului -Gruia cu priveliște spre zona Dâmbul Rotund -Baciu .Momentan sunt în lucru toate utilitățile având avize și începute toate lucrările după care se emite autorizația de construcție . Prețul este cu proiect inclus . . Nu fac schimb ! PUZ aprobat recent și absolut toate actele necesare .
Preț valabil până la autorizarea proiectului.
Agențiile pot prelua anunțul info pe Whatsup!
Vând cotă 50%teren 526 mp cu PUZ aprobat cu proiect de duplex compus din subsol parter etaj Practic se vinde proiectul și terenul pentru o unitate locativă . . Proiectul se mai poate modifica înainte de autorizare . Terenul se află în zona Strada Povarnisului -Gruia cu priveliște spre zona Dâmbul Rotund -Baciu .Momentan sunt în lucru toate utilitățile având avize și începute toate lucrările după care se emite autorizația de construcție . Prețul este cu proiect inclus . . Nu fac schimb ! PUZ aprobat recent și absolut toate actele necesare .
Preț valabil până la autorizarea proiectului.
Agențiile pot prelua anunțul info pe Whatsup!
ID: 288787280
Contactează vânzătorul
xxx xxx xxx
Localitate
Cluj-Napoca
Cluj
