Postat 18 noiembrie 2025
Vand Imobil + Afacere Restaurant Titan
400 000 €
Persoana fizica
Camere: 4 sau mai multe
Suprafata utila: 101 m²
Locuinta mobilata / utilata: Complet
Descriere
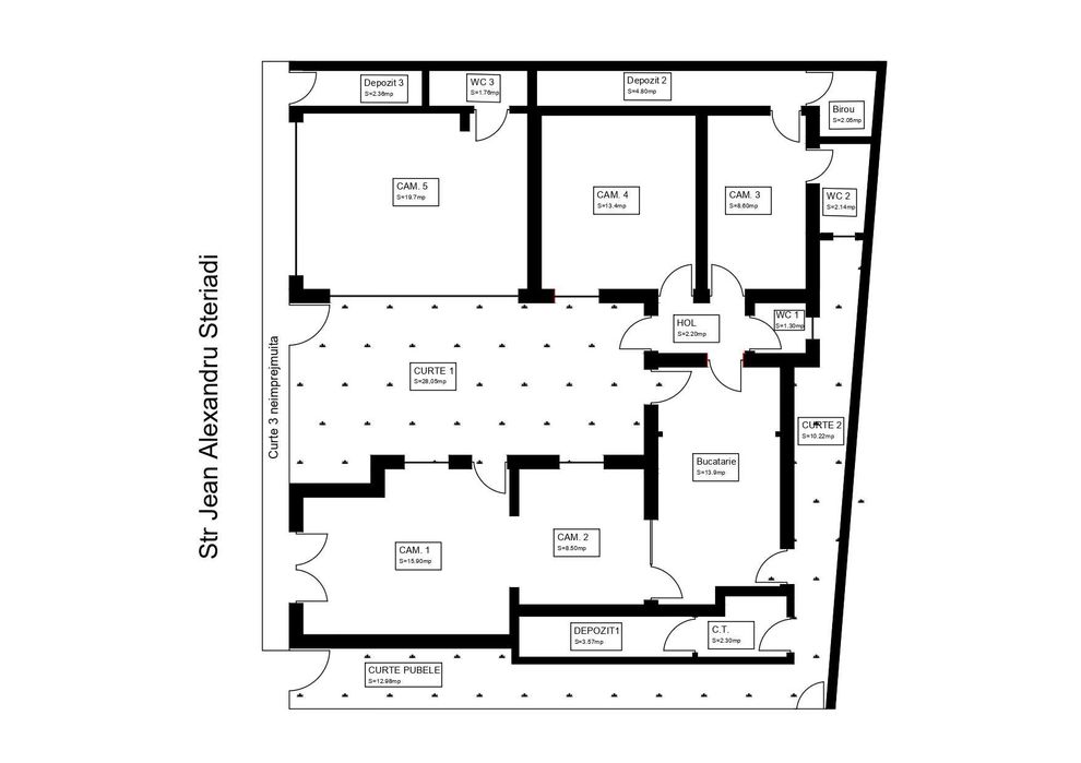
Vand imobil si afacere restaurant "LA BOBITA", situat pe str Jean Alexandru Steriadi, nr 18 compus din teren in suprafata de 180mp si imobil in suprafata construita de 110mp. La locatie activeaza un restaurant complet functional cu urmatoarele dotari (referinta poza 7):
- CURTE 1. Loc de luat masa. Terasa in aer liber
- CURTE 2. Spatiu de aprovizionare marfa
- CURTE 3. Spatiu depozitare pubele
- Camera 1. Loc de luat masa
- Camera 2. Bar si caserie
- Camera 3. Spatiu depozitare cu vitrine frigorifice si utilaj de curatat/ taiat cartofi
- Camera 4. Loc de luat masa. Separeu
- Camera 5. Loc de luat masa. Terasa inchisa cu pereti din sticla retractabili si incalzita pe timp de iarna
- Depozit 1. Depozitare bauturi
- Depozit 2. Lada frigorifica si consumabile
- Depozit 3. Spatiu stocare peturi/sticle/SGR
- Bucatarie. Complet echipata cu gratar la jar si cos de fum h=18m
- WC 1 si WC 3. Toalete clienti
- WC 2. Toaleta personal
Propunem vanzarea imobilului in doua variante:
1. Imobil + Preluare chirias (1500eur/luna) - 400.000,00eur
2. Imobil + Afacere - 450.000,00eu
- CURTE 1. Loc de luat masa. Terasa in aer liber
- CURTE 2. Spatiu de aprovizionare marfa
- CURTE 3. Spatiu depozitare pubele
- Camera 1. Loc de luat masa
- Camera 2. Bar si caserie
- Camera 3. Spatiu depozitare cu vitrine frigorifice si utilaj de curatat/ taiat cartofi
- Camera 4. Loc de luat masa. Separeu
- Camera 5. Loc de luat masa. Terasa inchisa cu pereti din sticla retractabili si incalzita pe timp de iarna
- Depozit 1. Depozitare bauturi
- Depozit 2. Lada frigorifica si consumabile
- Depozit 3. Spatiu stocare peturi/sticle/SGR
- Bucatarie. Complet echipata cu gratar la jar si cos de fum h=18m
- WC 1 si WC 3. Toalete clienti
- WC 2. Toaleta personal
Propunem vanzarea imobilului in doua variante:
1. Imobil + Preluare chirias (1500eur/luna) - 400.000,00eur
2. Imobil + Afacere - 450.000,00eu
ID: 295811872
Contactează vânzătorul
xxx xxx xxx
Localitate
Bucuresti, Sectorul 3
Bucuresti - Ilfov