Navighează la conținutul principal
OLX Christmas Logo
Chat

Notificari

Adaugă anunț nou
Vand Hala cu birouri Calea Prutului
Vand Hala cu birouri Calea Prutului
Vand Hala cu birouri Calea Prutului
Vand Hala cu birouri Calea Prutului
Vand Hala cu birouri Calea Prutului
Vand Hala cu birouri Calea Prutului
Vand Hala cu birouri Calea Prutului
Postat 26 decembrie 2025

Vand Hala cu birouri Calea Prutului

250 000 €

PromoveazăReactualizează

Persoana fizica

Suprafata construita (m2): 570

Suprafata teren (m2): 2 691

Tip proprietate: Distributie, Depozit, Spatiu productie

Inaltime utila (m): 6

Acces: Transport public

Infrastructura de baza: Canalizare, Acces pentru vehicule grele, Apa curenta

Alte facilitati: Gaze naturale

Siguranta: Supraveghere 24/7, Sistem de alarma, Supraveghere video

Descriere

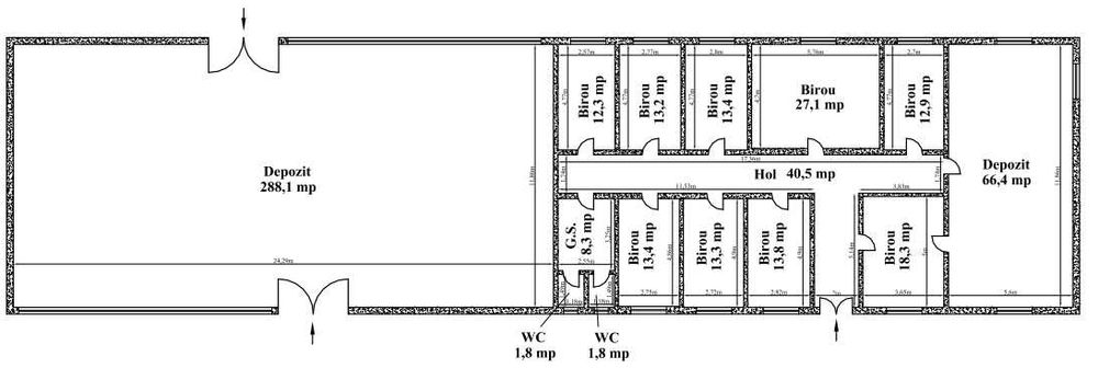
Vindem hala de depozitare/productie in suprafata construita de 570 mp amplasata pe Calea Prutului. Hala are aproximativ 300 mp iar restul reprezinta suprafata de birouri.
Inaltimea halei este de 6 m.
Cladirea se afla intr-o incinta securizata cu sistem de performant de supraveghere, alarme si acces.
Terenul aferent halei este de 2691 mp si este platforma betonata.
ID: 261016002

Contactează vânzătorul

Victor

Pe OLX din septembrie 2012

Activ pe 18 decembrie 2025

xxx xxx xxx

Localitate

Location

Galati

Galati

Descarca aplicatia pentru telefonul tau