Postat 19 ianuarie 2026
Vand duplex Floresti
189 000 €
Prețul e negociabil
Persoana fizica
Camere: 4 sau mai multe
Suprafata utila: 120 m²
Locuinta mobilata / utilata: Nemobilata / neutilata
Descriere
Persoană fizică, vând casă tip duplex situat în zona centrală din Florești, semifinisat, cu 4 camere.
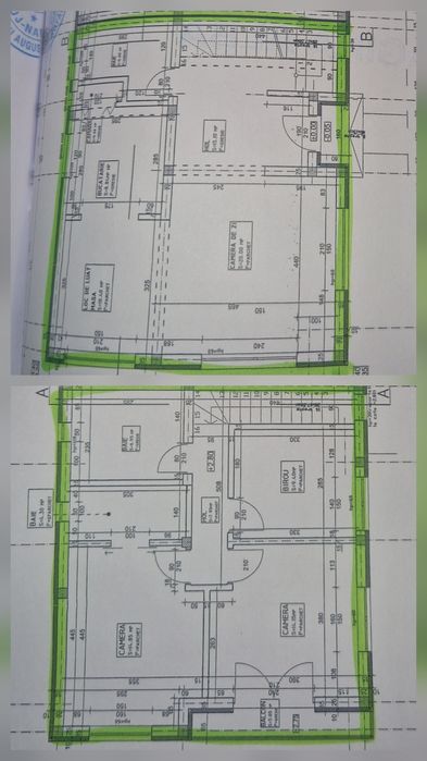
Compartimentare: P+1
-Parter: Hol, living spațios, bucătărie separată, baie și spațiu de depozitare;
-Etaj: Hol, 3 dormitoare (unul cu dresing separat), baie, balcon.
-Pod circulabil (spațiu depozitare)
-Suprafață utilă: 120 mp
-Suprafață teren : 110 mp + cota parte drum acces.
Dotări:
-Utilități trase la poziție.
-Centrală termică proprie;
-Încălzire în pardoseală (parter și etaj);
-Tâmplărie PVC cu geam termopan (tripan);
-Izolație exterioară-polistiren 10cm
-Perete dublu cu izolație fonică între unitățile locative;
-Placă de beton între etaje.
-Acoperiș din țiglă ceramică.
Locație:
-Florești, Str Avram Iancu nr. 263;
-Acces privat, pe teren sunt construite 3 unități tip duplex și 1 casă individuală.
-Zonă doar de case;
-Acces facil spre Cluj-Napoca;
-Stație de autobus la poartă.
-Drum de acces si parcări asfaltate.
Prețul afișat include 2 parcări auto.
Viitorii proprietari au posibilitatea de a-l finisa și mobila după propriul gust.
Nu colaborez cu agenții.
Mulțumesc!
Compartimentare: P+1
-Parter: Hol, living spațios, bucătărie separată, baie și spațiu de depozitare;
-Etaj: Hol, 3 dormitoare (unul cu dresing separat), baie, balcon.
-Pod circulabil (spațiu depozitare)
-Suprafață utilă: 120 mp
-Suprafață teren : 110 mp + cota parte drum acces.
Dotări:
-Utilități trase la poziție.
-Centrală termică proprie;
-Încălzire în pardoseală (parter și etaj);
-Tâmplărie PVC cu geam termopan (tripan);
-Izolație exterioară-polistiren 10cm
-Perete dublu cu izolație fonică între unitățile locative;
-Placă de beton între etaje.
-Acoperiș din țiglă ceramică.
Locație:
-Florești, Str Avram Iancu nr. 263;
-Acces privat, pe teren sunt construite 3 unități tip duplex și 1 casă individuală.
-Zonă doar de case;
-Acces facil spre Cluj-Napoca;
-Stație de autobus la poartă.
-Drum de acces si parcări asfaltate.
Prețul afișat include 2 parcări auto.
Viitorii proprietari au posibilitatea de a-l finisa și mobila după propriul gust.
Nu colaborez cu agenții.
Mulțumesc!
ID: 297225772
Contactează vânzătorul
xxx xxx xxx
