Postat 28 martie 2026
Vand casa in Dezmir 110 mp - teren 500 mp
135 100 €
Persoana fizica
Camere: 4 sau mai multe
Suprafata utila: 110 m²
Locuinta mobilata / utilata: Nemobilata / neutilata
Descriere
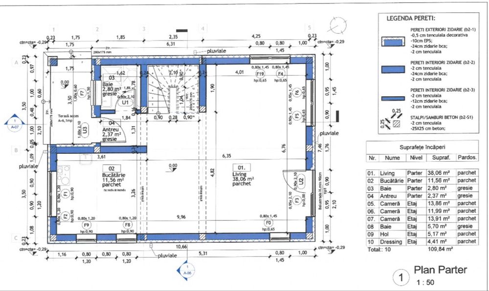
Casa de vanzare in Dezmir cu o suprafata de 110 mp util si teren 500 mp.
Parter: 1 living, 1 bucatarie, 1 baie.
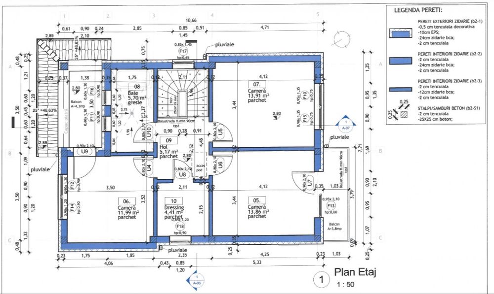
Etaj: 3 dormitoare, 1 baie, 1 dresing.
Casa este finisata pe exterior, geamuri 3 sticle, interior la rosu.
Se poate preda si semifinisat pana la un strat de glet, incalzire in pardoseala, instalatii de pozitii la pretul de 155.000 EUR
Parter: 1 living, 1 bucatarie, 1 baie.
Etaj: 3 dormitoare, 1 baie, 1 dresing.
Casa este finisata pe exterior, geamuri 3 sticle, interior la rosu.
Se poate preda si semifinisat pana la un strat de glet, incalzire in pardoseala, instalatii de pozitii la pretul de 155.000 EUR
ID: 298568670
Contactează vânzătorul
xxx xxx xxx
