Postat 08 decembrie 2025
Vand casa cu 2 apartamente independente
150 000 €
Persoana fizica
Camere: 4 sau mai multe
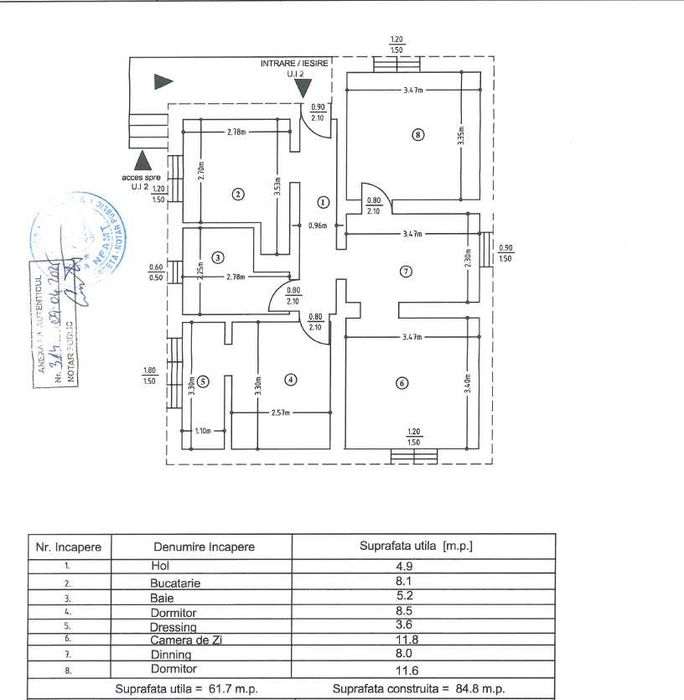
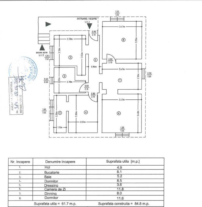
Suprafata utila: 65 m²
Locuinta mobilata / utilata: Nemobilata / neutilata
Descriere
Casa din caramida formata din 2 apartamente parter si etaj cu accese independente si utilitati cu contorizare separate contracte EON,
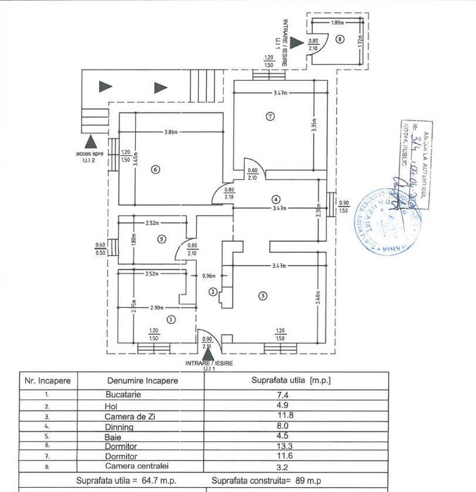
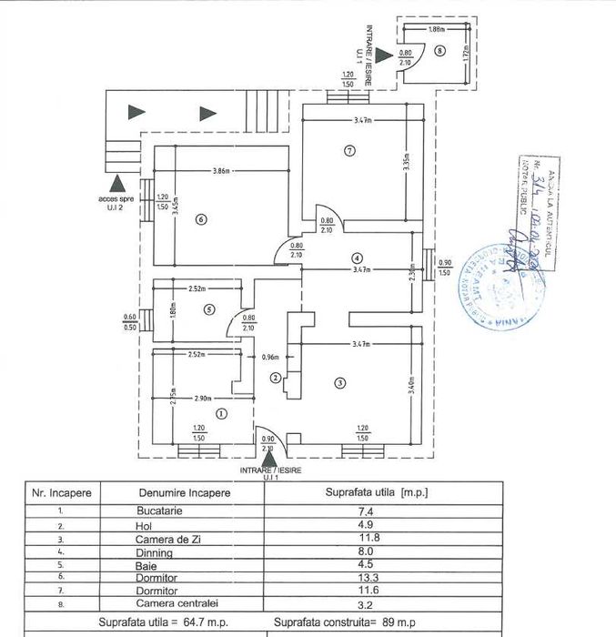
Suprafata construita per apartament : 89 mp
Suprafata utila per apartament : 64,7 mp
Instalatiile electrice schimbate inclusiv tablouri electrice noi, curenti slabi internet si tv
montat intrerupatoare si prize aparataj GEWIS modular
Instalatii sanitare schimbate inclusiv obiectele sanitare
Instalatii termice noi pexal izolat inglobat in sape cu montaj din distribuitor a traseelor de incalzire
Finisajele interioare :
~ Tamplarie ferestre: pvc, termopan antracit ;
~ Pardoseala : parchet egger 12 mm clasa 33 , gresie placi 60 x 120 ;
~ Pereti: vopsea lavabila, faianta.
Acoperis nou inclusiv accesorii jgheaburi burlane + termosistemul pe fatada realizat din polistiren expandat de 10 cm EPS 100 .
Casa are o curte libera 150 mp locuri de parcare si suficient loc pentru zona de joaca a copiilor, si o zona tehnica ideala pentru montarea echipamentelor termice (boiler, centrala, invertor )
Contoare individuale apa curent gaz
Nu se negociază apelați doar daca aveti interes altfel pierdem vremea inutil.
Suprafata construita per apartament : 89 mp
Suprafata utila per apartament : 64,7 mp
Instalatiile electrice schimbate inclusiv tablouri electrice noi, curenti slabi internet si tv
montat intrerupatoare si prize aparataj GEWIS modular
Instalatii sanitare schimbate inclusiv obiectele sanitare
Instalatii termice noi pexal izolat inglobat in sape cu montaj din distribuitor a traseelor de incalzire
Finisajele interioare :
~ Tamplarie ferestre: pvc, termopan antracit ;
~ Pardoseala : parchet egger 12 mm clasa 33 , gresie placi 60 x 120 ;
~ Pereti: vopsea lavabila, faianta.
Acoperis nou inclusiv accesorii jgheaburi burlane + termosistemul pe fatada realizat din polistiren expandat de 10 cm EPS 100 .
Casa are o curte libera 150 mp locuri de parcare si suficient loc pentru zona de joaca a copiilor, si o zona tehnica ideala pentru montarea echipamentelor termice (boiler, centrala, invertor )
Contoare individuale apa curent gaz
Nu se negociază apelați doar daca aveti interes altfel pierdem vremea inutil.
ID: 290695991
Contactează vânzătorul
xxx xxx xxx
Localitate
Piatra Neamt
Neamt