Postat Azi la 08:31
Vand Casa Colinelor 210 mp2 la gri (semifinisat) cu teren 350 mp2
245 000 €
Prețul e negociabil
Persoana fizica
Camere: 4 sau mai multe
Suprafata utila: 173 m²
Locuinta mobilata / utilata: Nemobilata / neutilata
Descriere
Vand casa la gri (semifinisat) la 245.000 Eur usor negociabil cu teren de 350 mp2 urmand a fi racordat la toate utilitatile: GAZ, CURENT, APA, CANALIZARE!
INCALZIRE IN PARDOSEALA!
Casa este in faza de csontructie parter executat (zidit) si planseu intermediar turnat. Termenul de predare la gri este de maxim 4 luni (Aprilie 2026).
Daca nu dispuneti de toata suma puteti bloca casa cu un avans urmand ca diferenta sa se achite la finalizarea lucrarilor din surse proprii sau credit bancar! Acceptam si credite bancare!
Daca doriti o casa de calitate merita vazuta! Avem poze cu toate etapele constructiei! Fara economii si defecte ascunse. Folosim doar materiale premium!
Pretul incluse racordarile la toate utilitatile (fara alte costuri ascunse): curent, apa, canal, GAZ!
Casa se afla pe strada Colinelor intersectia Raspantiilor. Pozitionarea se poate vedea in Planul de Amplasament atasat la poze (marcat cu X albastru)
Teren 350 mp2.
Amprenta casa: 93 mp2
Suprafata construita totala (balcon si terase incluse): ~200 mp2
Suprafata Utila: ~173 mp2
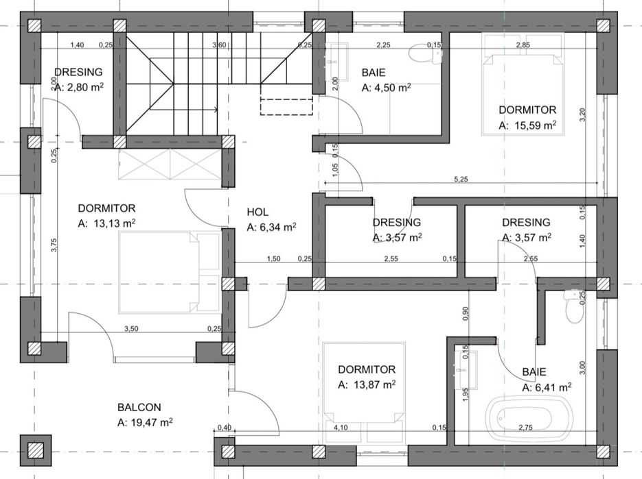
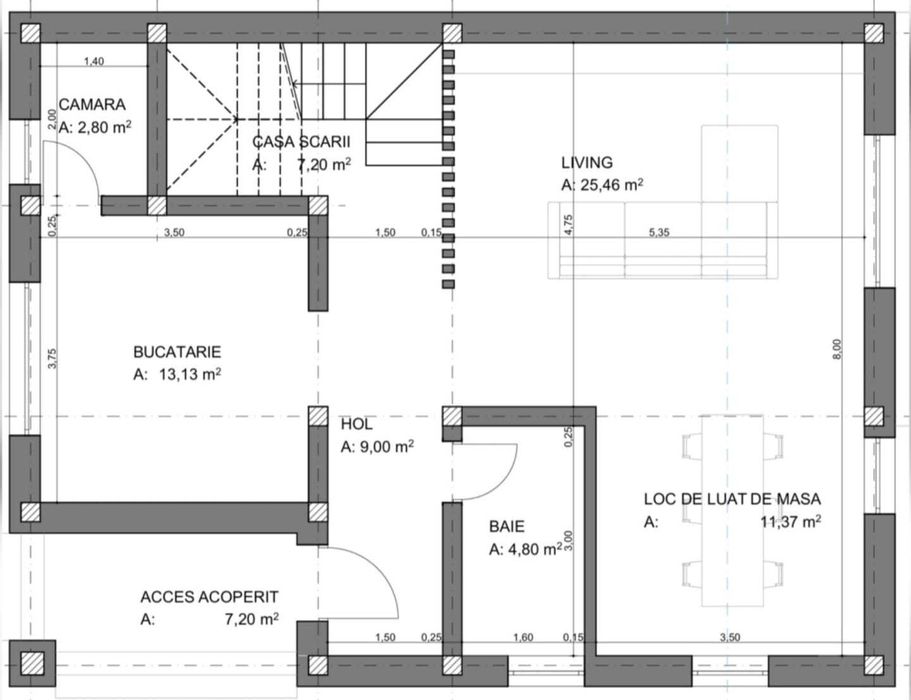
Compartimentare: a se vedea din pozele atasate la anunt.
Constructia:
BCA Ytong Viastein - Viablokk D450 (25 cm)
Izolatie exterioara polistiren Austrotherm EPS 80+ de 15cm
Geamuri Premium de la Qfort cu 3 randuri de sticla
Acoperis plan cu atic - hidroizolatie Bauder FPO/TPO
Tencuiala pe baza de Var Ciment si Glet Fassa Bortolo
In fazele de executie in caz de avans platit putem modifica in functie de necesitatile clientului anumite etape de constructie (ex. tip izolatie, tencuiala, hidroizolatie etc.)
Alte detalii la telefon!
INCALZIRE IN PARDOSEALA!
Casa este in faza de csontructie parter executat (zidit) si planseu intermediar turnat. Termenul de predare la gri este de maxim 4 luni (Aprilie 2026).
Daca nu dispuneti de toata suma puteti bloca casa cu un avans urmand ca diferenta sa se achite la finalizarea lucrarilor din surse proprii sau credit bancar! Acceptam si credite bancare!
Daca doriti o casa de calitate merita vazuta! Avem poze cu toate etapele constructiei! Fara economii si defecte ascunse. Folosim doar materiale premium!
Pretul incluse racordarile la toate utilitatile (fara alte costuri ascunse): curent, apa, canal, GAZ!
Casa se afla pe strada Colinelor intersectia Raspantiilor. Pozitionarea se poate vedea in Planul de Amplasament atasat la poze (marcat cu X albastru)
Teren 350 mp2.
Amprenta casa: 93 mp2
Suprafata construita totala (balcon si terase incluse): ~200 mp2
Suprafata Utila: ~173 mp2
Compartimentare: a se vedea din pozele atasate la anunt.
Constructia:
BCA Ytong Viastein - Viablokk D450 (25 cm)
Izolatie exterioara polistiren Austrotherm EPS 80+ de 15cm
Geamuri Premium de la Qfort cu 3 randuri de sticla
Acoperis plan cu atic - hidroizolatie Bauder FPO/TPO
Tencuiala pe baza de Var Ciment si Glet Fassa Bortolo
In fazele de executie in caz de avans platit putem modifica in functie de necesitatile clientului anumite etape de constructie (ex. tip izolatie, tencuiala, hidroizolatie etc.)
Alte detalii la telefon!
ID: 296510115
Contactează vânzătorul
xxx xxx xxx
Localitate
Oradea
Bihor