Postat 11 noiembrie 2025
vand apartament decomandat 4 camere etaj 2 Iasi
153 000 €
Prețul e negociabil
Persoana fizica
Compartimentare: Decomandat
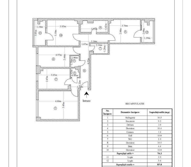
Suprafata utila: 79 m²
An constructie: 1977 – 1990
Etaj: 2
Descriere
Detalii apartament:
- aplasare in zona centrala cu acces facil la toate zonele de interes
- decomandat, 4 camere, confort 1, orientare sud-est 3 camere,balcon, bucatarie, nord-vest 1 camera si 1 balcon
- amplasare in interiorul blocului la etaj 2/4
- in spatele blocului parc pentru copii amenajat, distanta pana la blocul vecin 50m
- acoperis si izolatie efectuata si platita
- curatenie pe scara - si inlocuire tevi in subsol ( 12.11.2025 se face receptia lucrarii)- achitate si efectuate
- casa scarii placuta, curata cu scari late de 1.2m, interfon pe scara si lumina su senzor
- internet se pot accesa toate companiile (Vodafone, Orange, Digi)
- structura pe cadre cu grinzi de 25cm, bloc dat in folosinta in august 1980 - are standard de rezistenta sporita la cutremur
-izolat termic, termopane, balcoane inchise si plase de tantari si rulouri plasa
- centrala termica noua - nu se mai acorda aprobari pentru centrale de apartament
- parchet de stejar masiv 2cm grosime in camere si pe hol - 60mp
- complet gol si se poate trece la amenajarea personalizata a bailor si bucatariei
- 4 camere,bucatarie mare - 12mp, 2 debarale, 2 bai, 2 balcoane
- varuit in alb - var lavabil Apla
- usa metalica la intrare
- pe timp de iarna aveti 15-16 grade fara incalzire
- costuri de intretinere reduse in jur de 70 lei lunar ( se adauga costurile pe persoana si consumul de apa)
- in apropiere: scoala, gradinita, parc de joaca pentru copii, Lidl, Carrefour, Mega, Penny, mag de constructii
- pe jos pana in Piata Unirii se fac 20 de min, 30 min pana in Copou
- zona cu trafic redus si ampalsare la baza dealului Galata
- apa potabila de Timisesti cu gust bun - rece si fara gust de clor, nu are calcar ( vezi alte zone din Iasi)
( nu necesita filtru - cafeaua si ceaiul au alt gust ) ( in 15 ani nu am schimbat filtrul de la centrala in timp ce in alta zona am inlocuit filtrul in centrala o data la 2-3 ani)
- instalatie electrica functionala, instalatie sanitara functionala
- apartament fara sarcini, acte la zi, intabulat in 2024,
Ma adresez celor care apreciaza calitatea si lucrul bine facut cu simt de raspundere.( nu pe repede-inainte si pe principul musca si fugi !)
Ideal ca investitie pe termen lung pentru a va proteja de inflatie banii.
Negociabil in limite decente. Se poate vinde fara centrala (1000 euro), fara parchet ( 2000 euro)
- Direct de la proprietar
Se poate viziona - rog contact la 07******10 - Edi
- aplasare in zona centrala cu acces facil la toate zonele de interes
- decomandat, 4 camere, confort 1, orientare sud-est 3 camere,balcon, bucatarie, nord-vest 1 camera si 1 balcon
- amplasare in interiorul blocului la etaj 2/4
- in spatele blocului parc pentru copii amenajat, distanta pana la blocul vecin 50m
- acoperis si izolatie efectuata si platita
- curatenie pe scara - si inlocuire tevi in subsol ( 12.11.2025 se face receptia lucrarii)- achitate si efectuate
- casa scarii placuta, curata cu scari late de 1.2m, interfon pe scara si lumina su senzor
- internet se pot accesa toate companiile (Vodafone, Orange, Digi)
- structura pe cadre cu grinzi de 25cm, bloc dat in folosinta in august 1980 - are standard de rezistenta sporita la cutremur
-izolat termic, termopane, balcoane inchise si plase de tantari si rulouri plasa
- centrala termica noua - nu se mai acorda aprobari pentru centrale de apartament
- parchet de stejar masiv 2cm grosime in camere si pe hol - 60mp
- complet gol si se poate trece la amenajarea personalizata a bailor si bucatariei
- 4 camere,bucatarie mare - 12mp, 2 debarale, 2 bai, 2 balcoane
- varuit in alb - var lavabil Apla
- usa metalica la intrare
- pe timp de iarna aveti 15-16 grade fara incalzire
- costuri de intretinere reduse in jur de 70 lei lunar ( se adauga costurile pe persoana si consumul de apa)
- in apropiere: scoala, gradinita, parc de joaca pentru copii, Lidl, Carrefour, Mega, Penny, mag de constructii
- pe jos pana in Piata Unirii se fac 20 de min, 30 min pana in Copou
- zona cu trafic redus si ampalsare la baza dealului Galata
- apa potabila de Timisesti cu gust bun - rece si fara gust de clor, nu are calcar ( vezi alte zone din Iasi)
( nu necesita filtru - cafeaua si ceaiul au alt gust ) ( in 15 ani nu am schimbat filtrul de la centrala in timp ce in alta zona am inlocuit filtrul in centrala o data la 2-3 ani)
- instalatie electrica functionala, instalatie sanitara functionala
- apartament fara sarcini, acte la zi, intabulat in 2024,
Ma adresez celor care apreciaza calitatea si lucrul bine facut cu simt de raspundere.( nu pe repede-inainte si pe principul musca si fugi !)
Ideal ca investitie pe termen lung pentru a va proteja de inflatie banii.
Negociabil in limite decente. Se poate vinde fara centrala (1000 euro), fara parchet ( 2000 euro)
- Direct de la proprietar
Se poate viziona - rog contact la 07******10 - Edi
ID: 271464509
Contactează vânzătorul
xxx xxx xxx