Postat 30 ianuarie 2026
Vând apartament cu 3 camere în Nehoiu, jud.Buzău
55 000 €
Persoana fizica
Compartimentare: Decomandat
Suprafata utila: 67 m²
Descriere
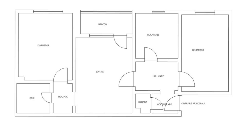
Vând apartament în Nehoiu, jud.Buzău, Bloc 23, scara C, Etaj 4, Apartament 20.
Apartamentul include 2 dormitoare + 1 living + 1 bucătărie + 1 baie + 1 debara + 3 holuri și 1 balcon închis. Apartamentul NECESITǍ RENOVARE, însă îl predau cu un pachet complet de proiectare,realizat împreună cu un designer de interior, astfel încât să știi exact cum îl poți transforma:
1. Plan 2D cu poziția fiecărei camere, uși și ferestre
2. Moodboarduri pe fiecare cameră realizate doar cu produse Ikea
3. Vizualizare 3D în care te poți “plimba” prin spațiu și vedea exact produsele propuse în moodbord,cum formeazǎ întreaga amenajare interioarǎ (este o propunere de amenajare gânditǎ să poată fi implementatǎ 100% în realitate cu produsele de la Ikea în ceea ce priveste mobilierul, sau alti furnizori pentru finisaje)
Clădirea a fost reabilitată recent: acoperiș refăcut, termopane montate, izolație efectuată – costurile majore la exterior sunt deja făcute. Dacă dorești, poți renova exact după proiectul 3D și poți comanda toate produsele direct de la Ikea.
Suprafata : 67 mp utili
Preț: 55000 € negociabil
Contact pentru vizionare: 07********70
Apartamentul include 2 dormitoare + 1 living + 1 bucătărie + 1 baie + 1 debara + 3 holuri și 1 balcon închis. Apartamentul NECESITǍ RENOVARE, însă îl predau cu un pachet complet de proiectare,realizat împreună cu un designer de interior, astfel încât să știi exact cum îl poți transforma:
1. Plan 2D cu poziția fiecărei camere, uși și ferestre
2. Moodboarduri pe fiecare cameră realizate doar cu produse Ikea
3. Vizualizare 3D în care te poți “plimba” prin spațiu și vedea exact produsele propuse în moodbord,cum formeazǎ întreaga amenajare interioarǎ (este o propunere de amenajare gânditǎ să poată fi implementatǎ 100% în realitate cu produsele de la Ikea în ceea ce priveste mobilierul, sau alti furnizori pentru finisaje)
Clădirea a fost reabilitată recent: acoperiș refăcut, termopane montate, izolație efectuată – costurile majore la exterior sunt deja făcute. Dacă dorești, poți renova exact după proiectul 3D și poți comanda toate produsele direct de la Ikea.
Suprafata : 67 mp utili
Preț: 55000 € negociabil
Contact pentru vizionare: 07********70
ID: 297061973
Contactează vânzătorul
xxx xxx xxx