Postat 05 ianuarie 2026
Vând apartament cu 2 camere conf 1 titan
93 000 €
Prețul e negociabil
Persoana fizica
Compartimentare: Decomandat
Suprafata utila: 53 m²
An constructie: 1977 – 1990
Etaj: 4
Descriere
Vând apartament 2 camere, decomandat, confort 1 sporit, direct proprietar, situat în zona Titan – Bulevardul 1 Decembrie 1918, la 800m de metrou 1 Decembrie 1918.
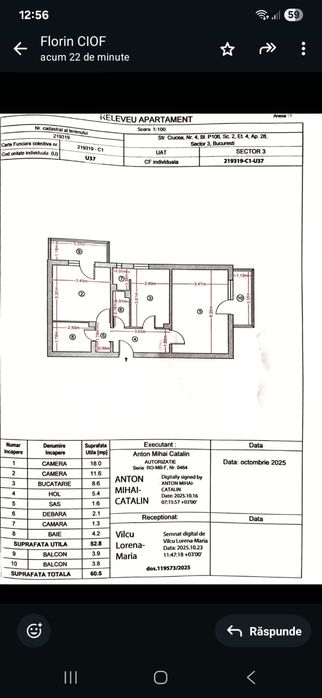
Imobilul se află pe strada Ciucea nr. 4 bloc P106
Suprafață:
• 53 mp utili
• 60,5 mp total
• 2 balcoane
Bloc:
• construit în 1985
• bloc anvelopat
• terasă reabilitată
• etaj 4 din 4
• fără lift
• scară îngrijită, curată
• vecini foarte civilizați
• nu au existat niciodată infiltrații sau probleme de condens
Vedere:
• vedere deschisă la stradă și grădină
• zonă aerisită, liniștită
Stare apartament:
• necesită îmbunătățiri
• ideal pentru renovare după propriul gust
• compartimentare foarte bună
Avantaje:
• acces rapid la metrou și mijloace de transport
• magazine, școli, grădinițe în apropiere
• zonă cu cerere ridicată, potrivită atât pentru locuit, cât și pentru investiție
• Acte în regulă.
Preț: 93.000 € – negociabil
Pentru detalii și vizionări: 07********10
Imobilul se află pe strada Ciucea nr. 4 bloc P106
Suprafață:
• 53 mp utili
• 60,5 mp total
• 2 balcoane
Bloc:
• construit în 1985
• bloc anvelopat
• terasă reabilitată
• etaj 4 din 4
• fără lift
• scară îngrijită, curată
• vecini foarte civilizați
• nu au existat niciodată infiltrații sau probleme de condens
Vedere:
• vedere deschisă la stradă și grădină
• zonă aerisită, liniștită
Stare apartament:
• necesită îmbunătățiri
• ideal pentru renovare după propriul gust
• compartimentare foarte bună
Avantaje:
• acces rapid la metrou și mijloace de transport
• magazine, școli, grădinițe în apropiere
• zonă cu cerere ridicată, potrivită atât pentru locuit, cât și pentru investiție
• Acte în regulă.
Preț: 93.000 € – negociabil
Pentru detalii și vizionări: 07********10
ID: 297717209
Contactează vânzătorul
xxx xxx xxx
Localitate
Bucuresti, Sectorul 3
Bucuresti - Ilfov