Navighează la conținutul principal
OLX Christmas Logo
Chat

Notificari

Adaugă anunț nou
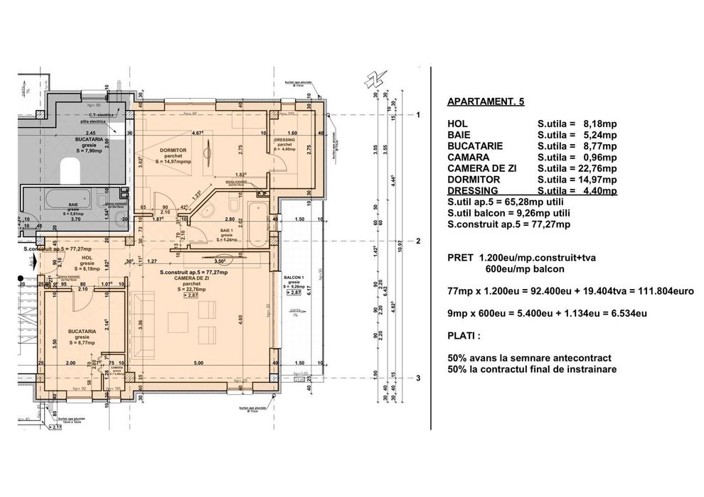
vând apartament 2 camere zona Livadă (la Măru)
Postat 22 decembrie 2025

vând apartament 2 camere zona Livadă (la Măru)

105 500 €

PromoveazăReactualizează

Persoana fizica

Compartimentare: Decomandat

Suprafata utila: 75 m²

An constructie: Dupa 2000

Etaj: 1

Descriere

vând apartament 2 camere zona Livadă (la Măru). Semifinisat. Cartier de construcții noi. Parcare inclusă în preț. Construcția se va finaliza cel târziu în 2026 decembrie. avans 50%, iar diferența până cel târziu la data de 31.12.2026.
NEGOCIABIL
ID: 297227744

Contactează vânzătorul

Mihaela

Pe OLX din decembrie 2025

Activ pe 19 decembrie 2025

xxx xxx xxx

Localitate

Location

Sasar

Maramures

Descarca aplicatia pentru telefonul tau