Postat 04 martie 2026
URGENT - Casa de vanzare 145mp
240 000 €
Prețul e negociabil
Persoana fizica
Camere: 4 sau mai multe
Suprafata utila: 145 m²
Locuinta mobilata / utilata: Partial
Descriere
‼️SÜRGŐSEN ELADÓ ‼️- Új ár: 240.000 € (ALKUDHATÓ)
Új építésú, emeletes téglaház Sepsiszentgyörgyön a Cigaretta utcában. A ház 2013-ban épült, hasznos felülete 145 m2, a terület 654 m2. A ház felosztása: 3 hálószoba, 1 gardrób, 1 nappali, 2 fürdőszoba, nagy konyha teljes felszereléssel, tágas előszoba. Fűtés gázkazánnal, városi vezetékes víz, városi kanalizálás. A ház a főúttól 25 méterre helyezkedik, a terület hátsó részén 2 melléképület található.
‼️Új ár: 240.000 € (ALKUDHATÓ) - az ár tartalmazza az összes költséget.
További részletekért keressen bátran telefonon vagy Whatsappon:
-07******33
-07******66
‼️DE VÂNZARE URGENT‼️ – Preț nou: 240.000 € (NEGOCIABIL)
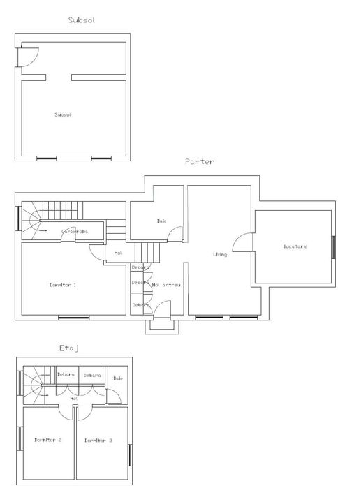
Casă din cărămidă, cu etaj, construcție nouă, situată în Sfântu Gheorghe, pe strada Cigaretta. Casa a fost construită în anul 2013, are o suprafață utilă de 145 mp și este amplasată pe un teren de 654 mp.
Compartimentare:
-3 dormitoare
-1 garderoba
-1 living
-2 băi
-bucătărie mare, complet utilată
-hol spațios
Încălzire cu centrală pe gaz, apă curentă din rețeaua orașului, canalizare.
Imobilul este situat la 25 m de drumul principal, iar în partea din spate a terenului se află 2 anexe. ‼️Preț nou: 240.000 € (NEGOCIABIL) – prețul include toate costurile.
Pentru mai multe detalii, nu ezitați să ne contactați telefonic sau pe WhatsApp:
07******33
07******66
Új építésú, emeletes téglaház Sepsiszentgyörgyön a Cigaretta utcában. A ház 2013-ban épült, hasznos felülete 145 m2, a terület 654 m2. A ház felosztása: 3 hálószoba, 1 gardrób, 1 nappali, 2 fürdőszoba, nagy konyha teljes felszereléssel, tágas előszoba. Fűtés gázkazánnal, városi vezetékes víz, városi kanalizálás. A ház a főúttól 25 méterre helyezkedik, a terület hátsó részén 2 melléképület található.
‼️Új ár: 240.000 € (ALKUDHATÓ) - az ár tartalmazza az összes költséget.
További részletekért keressen bátran telefonon vagy Whatsappon:
-07******33
-07******66
‼️DE VÂNZARE URGENT‼️ – Preț nou: 240.000 € (NEGOCIABIL)
Casă din cărămidă, cu etaj, construcție nouă, situată în Sfântu Gheorghe, pe strada Cigaretta. Casa a fost construită în anul 2013, are o suprafață utilă de 145 mp și este amplasată pe un teren de 654 mp.
Compartimentare:
-3 dormitoare
-1 garderoba
-1 living
-2 băi
-bucătărie mare, complet utilată
-hol spațios
Încălzire cu centrală pe gaz, apă curentă din rețeaua orașului, canalizare.
Imobilul este situat la 25 m de drumul principal, iar în partea din spate a terenului se află 2 anexe. ‼️Preț nou: 240.000 € (NEGOCIABIL) – prețul include toate costurile.
Pentru mai multe detalii, nu ezitați să ne contactați telefonic sau pe WhatsApp:
07******33
07******66
ID: 300360192
Contactează vânzătorul
xxx xxx xxx
Localitate
Sfantu Gheorghe
Covasna