Postat 13 noiembrie 2025
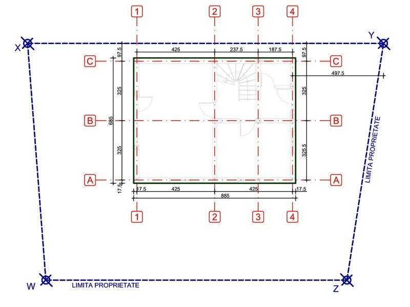
Trasare teren/limite de proprietate/intarusare/constructie
Persoana fizica
Descriere
Persoana fizica autorizata , autorizat de catre ANCPI, ofer urmatoarele servicii :
- trasari limite de proprietate, intarusare teren (conform cadastrului avizat) (minim 300 lei)
- trasare axe constructii, pentru a se respecta proiectul avizat (600 – 800 lei)
- planuri de situatie (cotate) / ridicare topo (700 – 1000 lei)
- planuri topografice avizate OCPI pentru obtinerea autorizatiei de construire
Lucrarile se executa in Bucuresti, Ilfov, Giurgiu si judetele limitrofe
- trasari limite de proprietate, intarusare teren (conform cadastrului avizat) (minim 300 lei)
- trasare axe constructii, pentru a se respecta proiectul avizat (600 – 800 lei)
- planuri de situatie (cotate) / ridicare topo (700 – 1000 lei)
- planuri topografice avizate OCPI pentru obtinerea autorizatiei de construire
Lucrarile se executa in Bucuresti, Ilfov, Giurgiu si judetele limitrofe
ID: 216085496
Contactează vânzătorul
xxx xxx xxx

