Postat 14 octombrie 2025
Tiny house 5800€ pe structura de lemn timber frame
Persoana fizica
SPECIALIZARI
- Constructii lemn
Descriere
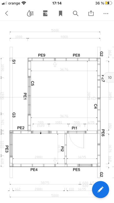
executam un nou concept de casa tiny house pe structura TIMBER FRAME la prețul de 5800€ cu suprafața construibila de 30mp cu terasa acoperită casa este pe un singur nivel aveti atasat proiectul in poze
DETALII TECHNICE:
-structura la pereti exteriori este din dulapi 15/4,5 cm ;
-pereti interiori vor fi din dulapi 10/4,5 cm si 15/4,5cm
-căpriori casei 20/8cm;
-pereti exteriori osb3 de 12mm;
-asteriala cherestea de 24mm;
-tot materialul lemnos este rindeluit la aceeași grosime pe patru fete si tratat si impregnat in autoclava cu tanalith
IN PREȚ ESTE INCLUS :
-proiect de rezistența făcut de structurist ;
-materialul lemnos adica panourile ;
-elemente metalice de asamblare , tije filetate , colțare ,șuruburi , holșuruburi , cuie , etc
-osb 12mm la pereti exteriori ;
-osb 12mm pe o parte la pereti interiori cei despărțitori ;
-impregnare materialul lemnos in autoclava cu tanalith ;
-transport ;
-montajul casei ;
-lambriu stresina ;
-balustrada terasa ;
-inclusiv asteriala pe casa;
PREȚUL CASEI ESTE LA ROSU ,PENTRU MAI MULTE DETALII CONTACTATI-NE (contra cost căsuța se poate placa pe exterior peste osb cu lambriu de lemn nut și feder)
DETALII TECHNICE:
-structura la pereti exteriori este din dulapi 15/4,5 cm ;
-pereti interiori vor fi din dulapi 10/4,5 cm si 15/4,5cm
-căpriori casei 20/8cm;
-pereti exteriori osb3 de 12mm;
-asteriala cherestea de 24mm;
-tot materialul lemnos este rindeluit la aceeași grosime pe patru fete si tratat si impregnat in autoclava cu tanalith
IN PREȚ ESTE INCLUS :
-proiect de rezistența făcut de structurist ;
-materialul lemnos adica panourile ;
-elemente metalice de asamblare , tije filetate , colțare ,șuruburi , holșuruburi , cuie , etc
-osb 12mm la pereti exteriori ;
-osb 12mm pe o parte la pereti interiori cei despărțitori ;
-impregnare materialul lemnos in autoclava cu tanalith ;
-transport ;
-montajul casei ;
-lambriu stresina ;
-balustrada terasa ;
-inclusiv asteriala pe casa;
PREȚUL CASEI ESTE LA ROSU ,PENTRU MAI MULTE DETALII CONTACTATI-NE (contra cost căsuța se poate placa pe exterior peste osb cu lambriu de lemn nut și feder)
ID: 246906262
Contactează vânzătorul
xxx xxx xxx