Postat 07 februarie 2026
Teren intravilan de închiriat Osorhei Jud.BH | DN E60 | Front S.Mare
1 €
Prețul e negociabil
Persoana fizica
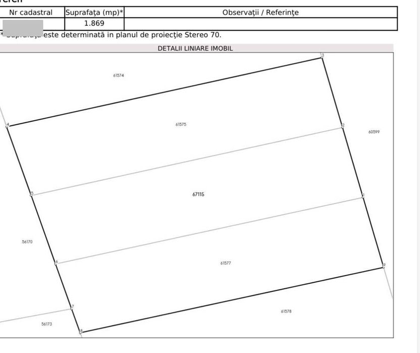
Suprafata utila: 1 869 m²
Extravilan / intravilan: Intravilan
Descriere
Teren intravilan de închiriat – Osorhei Jud.BH | DN E60 | Front stradal mare
Se oferă spre închiriere teren intravilan, plan, cu front stradal generos, amplasat direct la stradă, într-o zonă strategică în imediata apropiere a DN E60, cu vizibilitate și acces foarte bun.
Detalii proprietate:
• Suprafață: 1.869 mp
• Teren plan, ușor de utilizat
• Acces direct din drum principal
• Acces facil pentru camioane și utilaje
• Imprejmuit
• Supraveghere video24/7
Pretabil pentru:
• activități logistice
• depozitare
• parcare flotă / utilaje
• utilizări comerciale, conform reglementărilor urbanistice
Avantaje:
• poziționare excelentă
• vizibilitate ridicată
• teren plan, fără lucrări suplimentare
• zona linistita
• condiții contractuale negociabile pentru PF/PJ
Informații suplimentare: 07********11/mesaj
Se oferă spre închiriere teren intravilan, plan, cu front stradal generos, amplasat direct la stradă, într-o zonă strategică în imediata apropiere a DN E60, cu vizibilitate și acces foarte bun.
Detalii proprietate:
• Suprafață: 1.869 mp
• Teren plan, ușor de utilizat
• Acces direct din drum principal
• Acces facil pentru camioane și utilaje
• Imprejmuit
• Supraveghere video24/7
Pretabil pentru:
• activități logistice
• depozitare
• parcare flotă / utilaje
• utilizări comerciale, conform reglementărilor urbanistice
Avantaje:
• poziționare excelentă
• vizibilitate ridicată
• teren plan, fără lucrări suplimentare
• zona linistita
• condiții contractuale negociabile pentru PF/PJ
Informații suplimentare: 07********11/mesaj
ID: 299098142
Contactează vânzătorul
xxx xxx xxx