Postat 06 noiembrie 2025
Teren intravilan 1700mp - Poplaca - autorizatie constructie hala 450mp
127 500 €
Prețul e negociabil
Persoana fizica
Suprafata utila: 1 700 m²
Extravilan / intravilan: Intravilan
Descriere
Teren intravilan în suprafață de 1.700 mp, amplasat în zona industrială Poplaca, într-o arie aflată în curs de sistematizare. Acces facil, cu front pe două laturi ale drumului.
Utilități în curs de extindere pe drumul de acces; rețelele sunt deja disponibile la ambele capete ale drumului.
Apă & canalizare: punct de racord ~200 m
Energie electrică: punct de racord ~400 m
Internet: turn Digi la ~200 m
Acces & amplasament
Acces generos pe două laturi (ideal pentru flux logistic și manevre auto/TIR).
Proximitate față de viitoarea Centură de Sud a Sibiului, cu potențial logistic excelent.
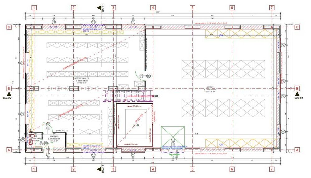
Autorizație de construire valabilă pentru hală de depozitare 450 mp (30 × 15 m), H = 6 m la streașină.
Avantaj major: construcția poate începe imediat.
Detalii PUZ:
POT: 60%
CUT: 1.2
Regim de inaltime: P+E
Utilități în curs de extindere pe drumul de acces; rețelele sunt deja disponibile la ambele capete ale drumului.
Apă & canalizare: punct de racord ~200 m
Energie electrică: punct de racord ~400 m
Internet: turn Digi la ~200 m
Acces & amplasament
Acces generos pe două laturi (ideal pentru flux logistic și manevre auto/TIR).
Proximitate față de viitoarea Centură de Sud a Sibiului, cu potențial logistic excelent.
Autorizație de construire valabilă pentru hală de depozitare 450 mp (30 × 15 m), H = 6 m la streașină.
Avantaj major: construcția poate începe imediat.
Detalii PUZ:
POT: 60%
CUT: 1.2
Regim de inaltime: P+E
ID: 292068649
Contactează vânzătorul
xxx xxx xxx