Postat 08 ianuarie 2026
teren ghimbav cu proiect casa
150 000 €
Persoana fizica
Suprafata utila: 656 m²
Extravilan / intravilan: Intravilan
Descriere
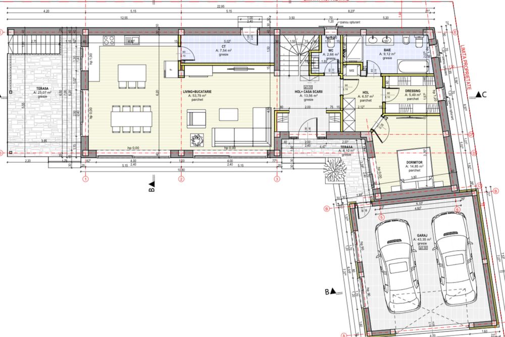
Rezumat proprietate – Ghimbav
Teren intravilan de 656 mp, situat într-un cartier asfaltat din Ghimbav, cu acces rapid la transport și facilități. Proprietatea beneficiază de contracte la utilități, proiect de casă și garaj, iar fundația casei este deja turnată, garajului este terminat si folosit Terenul este amenajat cu pomi fructiferi.
Poziționare excelentă: 1 minut până la stația de autobuz și 3 minute de mers pe jos până la grădiniță, creșă, magazin alimentar, restaurant, bază sportivă cu bazin de înot și biserică. Zonă în plină dezvoltare, cu policlinică planificată în viitorul apropiat.
Ideal pentru construcția rapidă a unei locuințe familiale sau ca investiție într-o zonă cu potențial ridicat.
Teren intravilan de 656 mp, situat într-un cartier asfaltat din Ghimbav, cu acces rapid la transport și facilități. Proprietatea beneficiază de contracte la utilități, proiect de casă și garaj, iar fundația casei este deja turnată, garajului este terminat si folosit Terenul este amenajat cu pomi fructiferi.
Poziționare excelentă: 1 minut până la stația de autobuz și 3 minute de mers pe jos până la grădiniță, creșă, magazin alimentar, restaurant, bază sportivă cu bazin de înot și biserică. Zonă în plină dezvoltare, cu policlinică planificată în viitorul apropiat.
Ideal pentru construcția rapidă a unei locuințe familiale sau ca investiție într-o zonă cu potențial ridicat.
ID: 297838235
Contactează vânzătorul
xxx xxx xxx
Localitate
Ghimbav
Brasov