Reactualizat la 22 februarie 2026
Teren cu Certificat de Urbanism și Proiect pentru Casă Individuală
21 200 €
Persoana fizica
Suprafata utila: 424 m²
Extravilan / intravilan: Intravilan
Descriere
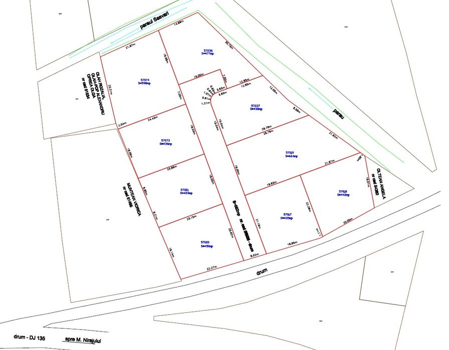
Terra Residence vă oferă spre vânzare parcele de teren intravilan cu suprafațe cuprinse între 424-664 mp în Sânisor la strada principală, comuna Livezeni, la doar 7-10 minute de Târgu Mureș.
Loturile dispun de proiect de casă individuală cu certificat de urbanism recent eliberat si valabil 2 ani.
Detalii teren și proiect:
Locație: Sânisor, la asfalt, în strada principală, comuna Livezeni, lângă stația de autobuz.
Utilități: Apa, canalizare, gaz, curent, asigurându-vă toate facilitățile necesare pentru construcție.
Zona liniștita, panorama deosebită.
Avantaje: Proiect de casă inclus, CU recent eliberat.
Preț: 50 euro/mp
Acest teren reprezintă o oportunitate excelentă pentru a începe construcția imediat, având deja documentația necesară pregătită.
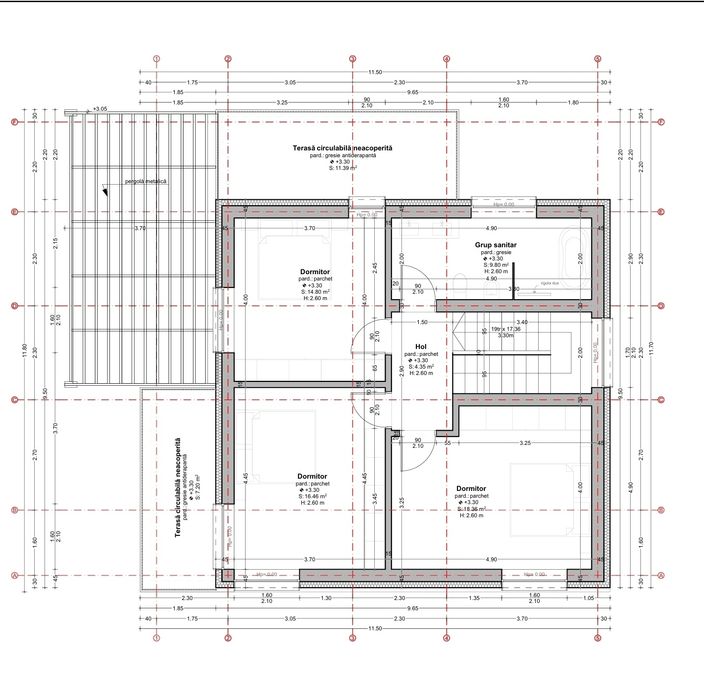
Proiectul casei individuale este compartimentat astfel:
- plan parter (hol intrare, camera tehnica, bucatarie, casa scarii, 1 baie, si un spatiu deschis pentru camera de zi si loc pentru servit masa)
- plan etaj ( 3 dormitoare, baie, si balcon la 2 dormitoare)
Terenul se află într-o zonă liniștită și în plină dezvoltare, aproape de oraș, oferind o priveliște foarte frumoasă.
Pentru mai multe detalii sau pentru a programa o vizionare, vă rugăm să ne contactați.
Tel 07******61
Loturile dispun de proiect de casă individuală cu certificat de urbanism recent eliberat si valabil 2 ani.
Detalii teren și proiect:
Locație: Sânisor, la asfalt, în strada principală, comuna Livezeni, lângă stația de autobuz.
Utilități: Apa, canalizare, gaz, curent, asigurându-vă toate facilitățile necesare pentru construcție.
Zona liniștita, panorama deosebită.
Avantaje: Proiect de casă inclus, CU recent eliberat.
Preț: 50 euro/mp
Acest teren reprezintă o oportunitate excelentă pentru a începe construcția imediat, având deja documentația necesară pregătită.
Proiectul casei individuale este compartimentat astfel:
- plan parter (hol intrare, camera tehnica, bucatarie, casa scarii, 1 baie, si un spatiu deschis pentru camera de zi si loc pentru servit masa)
- plan etaj ( 3 dormitoare, baie, si balcon la 2 dormitoare)
Terenul se află într-o zonă liniștită și în plină dezvoltare, aproape de oraș, oferind o priveliște foarte frumoasă.
Pentru mai multe detalii sau pentru a programa o vizionare, vă rugăm să ne contactați.
Tel 07******61
ID: 299761757
Contactează vânzătorul
xxx xxx xxx