Postat 11 ianuarie 2026
Teren cu 2 case batranesti comuna Perieti
32 500 €
Persoana fizica
Camere: 4 sau mai multe
Descriere
Teren intravilan cu 2 case bătrânești – Perieți, jud. Olt
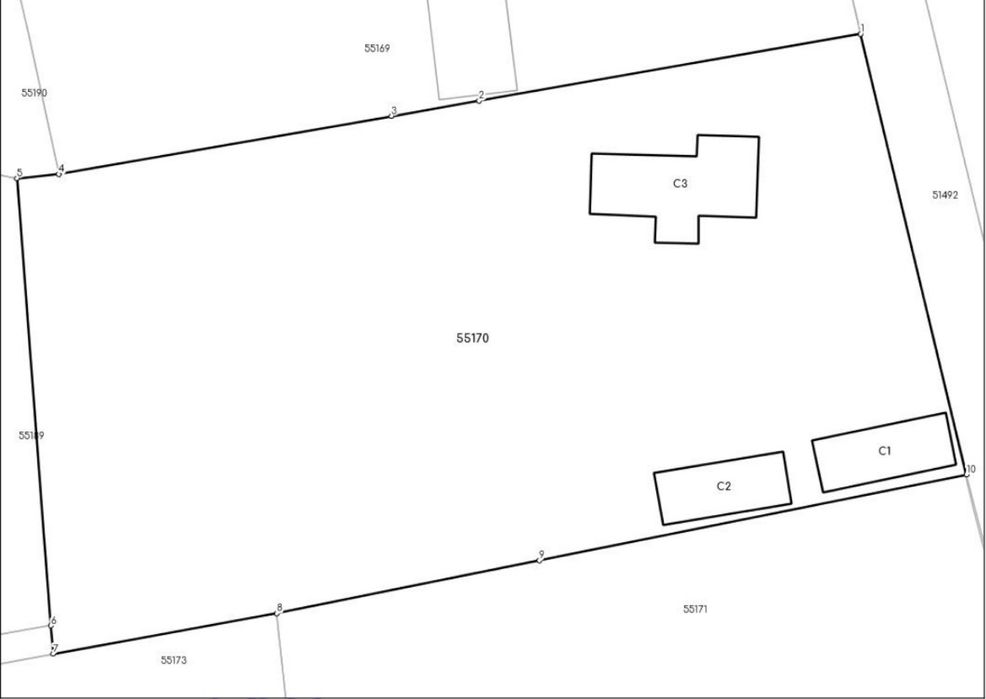
Vând teren intravilan în comuna Perieți, județul Olt, cu suprafața de 1.766 mp și deschidere la stradă de 29 m, pe care se află două case bătrânești.
Localizare:
la aproximativ 20 km de Slatina
la 600 m de Primăria Perieți
zonă liniștită, cu acces direct din drum
Construcții existente:
2 case bătrânești, ideale pentru renovare sau demolare
potrivite pentru locuință, gospodărie sau investiție
Utilități:
curent electric disponibil
rețele de apă și canalizare introduse pe stradă (în curs de dare în folosință)
Teren generos, cu deschidere mare, potrivit pentru construcție casă nouă sau dezvoltare.
Preț: 32.500€ negociabil
Vând teren intravilan în comuna Perieți, județul Olt, cu suprafața de 1.766 mp și deschidere la stradă de 29 m, pe care se află două case bătrânești.
Localizare:
la aproximativ 20 km de Slatina
la 600 m de Primăria Perieți
zonă liniștită, cu acces direct din drum
Construcții existente:
2 case bătrânești, ideale pentru renovare sau demolare
potrivite pentru locuință, gospodărie sau investiție
Utilități:
curent electric disponibil
rețele de apă și canalizare introduse pe stradă (în curs de dare în folosință)
Teren generos, cu deschidere mare, potrivit pentru construcție casă nouă sau dezvoltare.
Preț: 32.500€ negociabil
ID: 297691955
Contactează vânzătorul
xxx xxx xxx