Postat 15 decembrie 2025
Teren + constructie, de vanzare, zona Arhitect Berindei, Iasi
150 €
Prețul e negociabil
Persoana fizica
Suprafata utila: 1 636 m²
Descriere
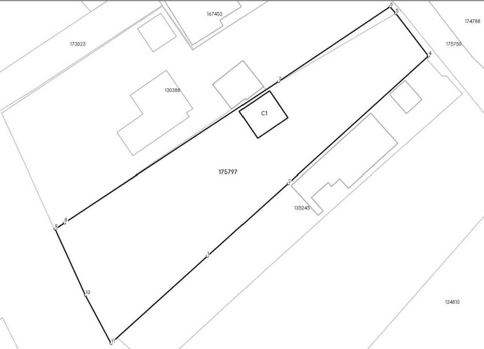
Vând teren situat pe strada Arhitect Berindei, Iași, aflat într-o zonă liniștită, cu acces bun și potențial excelent de investiție. Proprietatea include o construcție existentă, ceea ce poate facilita obținerea unor avize și dezvoltarea ulterioară.
În vecinătate se află locuințe construite în ultimii ani, iar zona este în continuă dezvoltare.
Caracteristici:
* Suprafață teren: 1636 mp
* Există construcție pe teren (detalii la cerere)
* Acces la drum, front stradal 12,92ml
* Zonă cu potențial ridicat pentru proiecte viitoare
* Preț negociabil în cazul unei intenții ferme de cumpărare, 150 euro/mp. Se vinde toată suprafața.
Contact: 07******17
În vecinătate se află locuințe construite în ultimii ani, iar zona este în continuă dezvoltare.
Caracteristici:
* Suprafață teren: 1636 mp
* Există construcție pe teren (detalii la cerere)
* Acces la drum, front stradal 12,92ml
* Zonă cu potențial ridicat pentru proiecte viitoare
* Preț negociabil în cazul unei intenții ferme de cumpărare, 150 euro/mp. Se vinde toată suprafața.
Contact: 07******17
ID: 296749025
Contactează vânzătorul
xxx xxx xxx