Navighează la conținutul principal
Chat

Notificari

Adaugă anunț nou
Teren + Autorizatie +Toate utilitatile  Rediu Valea Lupului
Teren + Autorizatie +Toate utilitatile  Rediu Valea Lupului
Teren + Autorizatie +Toate utilitatile  Rediu Valea Lupului
Teren + Autorizatie +Toate utilitatile  Rediu Valea Lupului
Postat 23 noiembrie 2025

Teren + Autorizatie +Toate utilitatile Rediu Valea Lupului

39 000 €

Prețul e negociabil

PromoveazăReactualizează

Persoana fizica

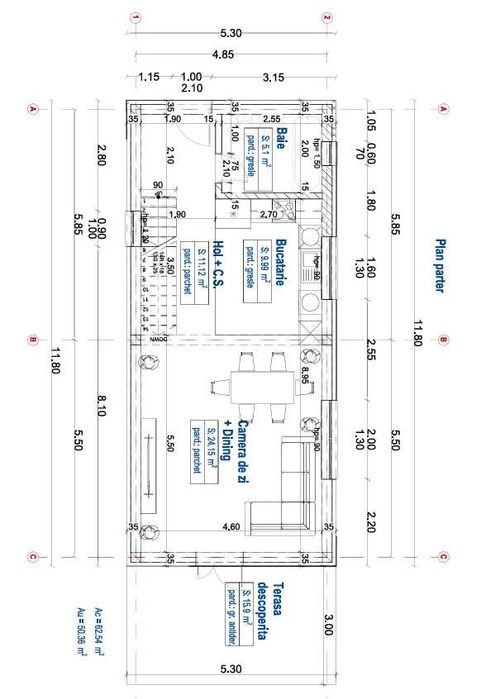
Suprafata utila: 313 m²

Extravilan / intravilan: Intravilan

Descriere

vanzator persoana juridica platitoare de tva.
ID: 293062987

Contactează vânzătorul

Sava

Pe OLX din octombrie 2018

Activ pe 25 noiembrie 2025

xxx xxx xxx

Localitate

Location

Rediu

Iasi

Descarca aplicatia pentru telefonul tau