Postat 09 aprilie 2026
Teren autorizat Dezmir AC Duplex
120 000 €
Prețul e negociabil
Persoana fizica
Suprafata utila: 2 000 m²
Extravilan / intravilan: Intravilan
Descriere
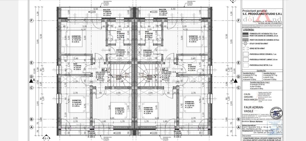
Vand teren cu autorizatie constructie cu PUD, in Dezmir, str. Teilor Nr. 16, pentru 2 duplexuri, respectiv 4 unitati locative.
Indici:
S teren = 2000mp
S totala desfasurata construita = 602,80mp
S util unitate = 121,30mp + balcon = 10.92mp
S util total = 485,20mp + balcoane 43,68mp
Terenul este in panta. Elevatie totala 18.5m la lungimea terenului de 63m.
Orientare vestica a versantului.
Studiu geo executat profesional, de catre o firma de prestigiu. Realizat studiu stabilitate versant.
PT:
- fundatii continue cu elevatii armate si placa pe sol
- parter structura rezistenta pe samburi ba, zidarie portanta 25cm, centuri si placa dala (nu vor exista grinzi aparente la nici un planseu)
- etaj - samburi ba, zidarie portanta si centuri ba
- sarpanta din lemn cu invelitoare de tabla.
Terenul se poate vinde intreg, sau se poate vinde în cota parte de 1/2, în vederea parcelarii după recepția construcțiilor.
Proprietar PF.
Pret 60E/mp, 120.000EUR.
Indici:
S teren = 2000mp
S totala desfasurata construita = 602,80mp
S util unitate = 121,30mp + balcon = 10.92mp
S util total = 485,20mp + balcoane 43,68mp
Terenul este in panta. Elevatie totala 18.5m la lungimea terenului de 63m.
Orientare vestica a versantului.
Studiu geo executat profesional, de catre o firma de prestigiu. Realizat studiu stabilitate versant.
PT:
- fundatii continue cu elevatii armate si placa pe sol
- parter structura rezistenta pe samburi ba, zidarie portanta 25cm, centuri si placa dala (nu vor exista grinzi aparente la nici un planseu)
- etaj - samburi ba, zidarie portanta si centuri ba
- sarpanta din lemn cu invelitoare de tabla.
Terenul se poate vinde intreg, sau se poate vinde în cota parte de 1/2, în vederea parcelarii după recepția construcțiilor.
Proprietar PF.
Pret 60E/mp, 120.000EUR.
ID: 283327625
Contactează vânzătorul
xxx xxx xxx