Postat 08 ianuarie 2026
Teren 3250 mp cu AUTORIZATIE DE CONSTRUIRE imobil cu 30 de apartamente
499 000 €
Persoana fizica
Suprafata utila: 3 250 m²
Extravilan / intravilan: Intravilan
Descriere
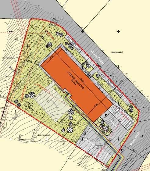
Proprietar (persoana juridica) vand teren in Dej, str Daciei (zona ANL), 3250 mp cu autorizatie de construire bloc cu 30 de apartamente:
- 4 apartamente de 4 camere,
- 25 apartamente de 3 cemere,
- 1 apartament de 2 camere.
26 parcari la subsol si 23 parcari exterioare.
Regim de inaltime S+P+4E, bloc cu lift, front la doua drumuri, utilitati la limita de proprietate..
Pret 499.000 Euro + TVA
Tel: 07******83
- 4 apartamente de 4 camere,
- 25 apartamente de 3 cemere,
- 1 apartament de 2 camere.
26 parcari la subsol si 23 parcari exterioare.
Regim de inaltime S+P+4E, bloc cu lift, front la doua drumuri, utilitati la limita de proprietate..
Pret 499.000 Euro + TVA
Tel: 07******83
ID: 272692175
Contactează vânzătorul
xxx xxx xxx
