Postat 02 decembrie 2025
Studio Dublu - Luxuria - amenajare premium - Comision 0%
185 000 €
Persoana fizica
Compartimentare: Semidecomandat
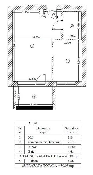
Suprafata utila: 44 m²
An constructie: Dupa 2000
Etaj: 6
Descriere
Vă propunem spre vânzare un studio dublu superb, situat în cel mai prestigios complex rezidențial din zona Expoziției: Luxuria Residence.
Apartamentul este situat la etajul 6 din 8 al unui imobil nou finalizat în 2021, oferind o priveliște deschisă și liniște. Este o proprietate "la cheie", ideală atât pentru rezidență imediată, cât și pentru o investiție cu randament ridicat in timp.
Calitate și Design Interior de Excepție:
Proprietatea se vinde complet mobilată și utilată, beneficiind de o investiție considerabilă în amenajarea interioară. Întregul mobilier a fost realizat pe comandă, în colaborare cu branduri de renume: Kuxa, Kare, Mobexpert.
Living și zona de noapte: Mobilier custom-made Mobexpert, proiectat pentru a maximiza spațiul și a oferi un confort deosebit.
Bucătărie: Realizată pe comandă cu Kuxa, complet utilată cu electrocasnice premium (plită, cuptor, hotă, frigider, mașină de spălat vase), integrate perfect în design.
Compartimentare și Spațiu:
Cu o suprafață utilă de 44 mp, apartamentul este completat de un balcon generos de 6.5 mp.
Balconul este închis, transformându-l într-o extensie a spațiului de locuit (tip logie), perfect pentru o zonă de dining, un birou (home office) sau un spațiu de relaxare, utilizabil în orice anotimp. Suprafața totală utilizabilă ajunge astfel la 50.5 mp.
Orientarea către Sud asigură o luminozitate naturală pe tot parcursul zilei și costuri reduse la întreținere pe timp de iarnă.
Pachet Complet de Beneficii:
Un avantaj major în această zonă, apartamentul se poate vinde împreună cu:
Boxă de depozitare: Spațiu suplimentar esențial, situat la subsolul clădirii.
Loc de parcare subteran cu acces facil și securizat, direct cu liftul - contra cost
Puncte Forte:
Locație Premium: Complexul Luxuria Residence, zona Expoziției (Romexpo), Sector 1.
Calitate Premium: Mobilier realizat integral pe comandă (Mobexpert) și bucătărie (Kuxa).
Pachet Complet: Prețul include si o boxă de depozitare. Locul de parcare se poate achizitiona separat.
Complex Exclusivist: Luxuria este un complex certificat BREEAM Excellent, cu recepție, pază 24/7, supraveghere video, sală de fitness, lounge și spații verzi amenajate.
Eficiență: Orientare sudică (luminos și călduros) și balcon închis (50.5 mp utilizabili total).
Gata de Mutare: Se vinde complet mobilat și utilat, exact ca în fotografii.
Localizare și Vecinătăți:
Situat strategic zona de nord a Bucureștiului, complexul oferă acces imediat către:
Parcul Herăstrău (5 minute de mers cu mașina), Parcul Agronomiei - 5 minute pe jos;
Clădirile de birouri din zona Expoziției, Piața Presei Libere și Piața Victoriei.
Acces facil către Aeroportul Otopeni și zona comercială Băneasa.
Această proprietate reprezintă o oportunitate rară de a achiziționa un pachet complet, de o calitate superioară, într-una dintre cele mai dinamice și căutate zone din București.
Pentru detalii suplimentare și programarea unei vizionări, vă rog să mă contactați.
Apartamentul este situat la etajul 6 din 8 al unui imobil nou finalizat în 2021, oferind o priveliște deschisă și liniște. Este o proprietate "la cheie", ideală atât pentru rezidență imediată, cât și pentru o investiție cu randament ridicat in timp.
Calitate și Design Interior de Excepție:
Proprietatea se vinde complet mobilată și utilată, beneficiind de o investiție considerabilă în amenajarea interioară. Întregul mobilier a fost realizat pe comandă, în colaborare cu branduri de renume: Kuxa, Kare, Mobexpert.
Living și zona de noapte: Mobilier custom-made Mobexpert, proiectat pentru a maximiza spațiul și a oferi un confort deosebit.
Bucătărie: Realizată pe comandă cu Kuxa, complet utilată cu electrocasnice premium (plită, cuptor, hotă, frigider, mașină de spălat vase), integrate perfect în design.
Compartimentare și Spațiu:
Cu o suprafață utilă de 44 mp, apartamentul este completat de un balcon generos de 6.5 mp.
Balconul este închis, transformându-l într-o extensie a spațiului de locuit (tip logie), perfect pentru o zonă de dining, un birou (home office) sau un spațiu de relaxare, utilizabil în orice anotimp. Suprafața totală utilizabilă ajunge astfel la 50.5 mp.
Orientarea către Sud asigură o luminozitate naturală pe tot parcursul zilei și costuri reduse la întreținere pe timp de iarnă.
Pachet Complet de Beneficii:
Un avantaj major în această zonă, apartamentul se poate vinde împreună cu:
Boxă de depozitare: Spațiu suplimentar esențial, situat la subsolul clădirii.
Loc de parcare subteran cu acces facil și securizat, direct cu liftul - contra cost
Puncte Forte:
Locație Premium: Complexul Luxuria Residence, zona Expoziției (Romexpo), Sector 1.
Calitate Premium: Mobilier realizat integral pe comandă (Mobexpert) și bucătărie (Kuxa).
Pachet Complet: Prețul include si o boxă de depozitare. Locul de parcare se poate achizitiona separat.
Complex Exclusivist: Luxuria este un complex certificat BREEAM Excellent, cu recepție, pază 24/7, supraveghere video, sală de fitness, lounge și spații verzi amenajate.
Eficiență: Orientare sudică (luminos și călduros) și balcon închis (50.5 mp utilizabili total).
Gata de Mutare: Se vinde complet mobilat și utilat, exact ca în fotografii.
Localizare și Vecinătăți:
Situat strategic zona de nord a Bucureștiului, complexul oferă acces imediat către:
Parcul Herăstrău (5 minute de mers cu mașina), Parcul Agronomiei - 5 minute pe jos;
Clădirile de birouri din zona Expoziției, Piața Presei Libere și Piața Victoriei.
Acces facil către Aeroportul Otopeni și zona comercială Băneasa.
Această proprietate reprezintă o oportunitate rară de a achiziționa un pachet complet, de o calitate superioară, într-una dintre cele mai dinamice și căutate zone din București.
Pentru detalii suplimentare și programarea unei vizionări, vă rog să mă contactați.
ID: 296485227
Contactează vânzătorul
xxx xxx xxx
Localitate
Bucuresti, Sectorul 1
Bucuresti - Ilfov
