Navighează la conținutul principal
Chat

Notificari

Adaugă anunț nou
Structura casa lemn 60mp
Structura casa lemn 60mp
Structura casa lemn 60mp
Structura casa lemn 60mp
Postat 19 ianuarie 2026

Structura casa lemn 60mp

14 900 €

PromoveazăReactualizează

Persoana fizica

Stare: Nou

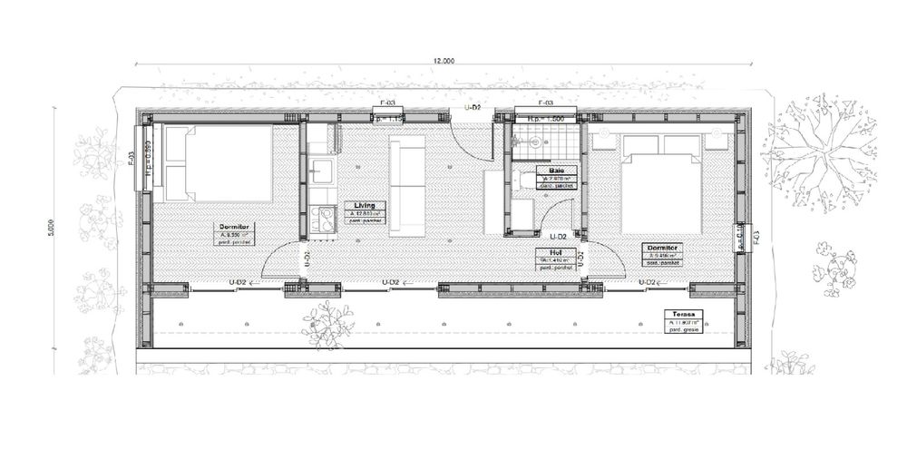
Descriere

Structura lemn certificat C24
Placare OSB 15 mm
Suruburi si conectori metalici pentru lemn
Montaj
Suprafata: 60 mp
Pret: 7900€
ID: 279657229

Contactează vânzătorul

Georgiana

Pe OLX din aprilie 2015

Activ pe 24 ianuarie 2026

xxx xxx xxx

Localitate

Descarca aplicatia pentru telefonul tau