Postat 06 februarie 2026
Spațiu de închiriat zonă ultracentrală Cuza Vodă, v-a-v Primăria Buzău
1 500 €
Persoana fizica
Vanzare/Inchiriere: Inchiriere
Suprafata utila: 100 m²
Descriere
Descriere generală:
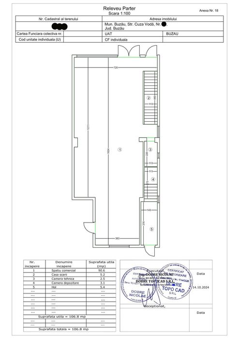
Se oferă spre închiriere un spațiu comercial cu poziție excelentă, ideal pentru activități comerciale, prestări servicii, birouri sau funcțiuni medicale. Imobilul este situat în zona pietonală Cuza Vodă, chiar lângă intrarea în Hotel Corso, vizavi de noua Primărie a municipiului Buzău.
Detalii spațiu principal:
Suprafață utilă: 100 mp, situată la parter
Chirie lunară: 1.500 EUR (TVA 0)
Facilități: se oferă 1 lună gratuită pentru amenajare și deschiderea afacerii
Compartimentare: open-space
Acces dublu: pietonal din str. Cuza Vodă și auto din str. Piața Teatrului
Terasa / curte mică în fața spațiului – ideală pentru zonă de primire clienți sau expunere
Caracteristici imobil:
Clădire independentă, cu teren în proprietate exclusivă
Construcție recentă, realizată din cadre de beton armat și cărămidă Porotherm
Regim de înălțime: D+P+1E+M
Încălzire în pardoseală, centrală termică proprie pe gaz
Grup sanitar inclus
Racord complet la toate utilitățile: apă, canal, gaz, electricitate (inclusiv 380V trifazic)
Spații suplimentare disponibile (opțional):
Demisol: 100 mp – ideal pentru depozitare, arhivare, vestiare etc.
Etaj 1: 30 mp – poate fi folosit ca birou auxiliar sau cameră de odihnă
Destinații recomandate:
Clinici medicale sau stomatologice
Cabinete de servicii (notariat, avocatură, consultanță)
Birouri de firmă
Activități comerciale cu acces public (cofetărie, cafenea, retail)
Saloane de înfrumusețare, showroom-uri, HORECA ușoară
Localizare premium:
zona pietonală Cuza Vodă, una dintre cele mai circulate și apreciate locații din Buzău, în imediata vecinătate a Primăriei și Hotelului Corso.
Pentru detalii și programări vizionare sunați.
Se oferă spre închiriere un spațiu comercial cu poziție excelentă, ideal pentru activități comerciale, prestări servicii, birouri sau funcțiuni medicale. Imobilul este situat în zona pietonală Cuza Vodă, chiar lângă intrarea în Hotel Corso, vizavi de noua Primărie a municipiului Buzău.
Detalii spațiu principal:
Suprafață utilă: 100 mp, situată la parter
Chirie lunară: 1.500 EUR (TVA 0)
Facilități: se oferă 1 lună gratuită pentru amenajare și deschiderea afacerii
Compartimentare: open-space
Acces dublu: pietonal din str. Cuza Vodă și auto din str. Piața Teatrului
Terasa / curte mică în fața spațiului – ideală pentru zonă de primire clienți sau expunere
Caracteristici imobil:
Clădire independentă, cu teren în proprietate exclusivă
Construcție recentă, realizată din cadre de beton armat și cărămidă Porotherm
Regim de înălțime: D+P+1E+M
Încălzire în pardoseală, centrală termică proprie pe gaz
Grup sanitar inclus
Racord complet la toate utilitățile: apă, canal, gaz, electricitate (inclusiv 380V trifazic)
Spații suplimentare disponibile (opțional):
Demisol: 100 mp – ideal pentru depozitare, arhivare, vestiare etc.
Etaj 1: 30 mp – poate fi folosit ca birou auxiliar sau cameră de odihnă
Destinații recomandate:
Clinici medicale sau stomatologice
Cabinete de servicii (notariat, avocatură, consultanță)
Birouri de firmă
Activități comerciale cu acces public (cofetărie, cafenea, retail)
Saloane de înfrumusețare, showroom-uri, HORECA ușoară
Localizare premium:
zona pietonală Cuza Vodă, una dintre cele mai circulate și apreciate locații din Buzău, în imediata vecinătate a Primăriei și Hotelului Corso.
Pentru detalii și programări vizionare sunați.
ID: 284044803
Contactează vânzătorul
xxx xxx xxx