Postat 26 septembrie 2025
Spatiu comercial ultracentral cu vitrine inchiriere sau vanzare
1 750 €
Prețul e negociabil
Persoana fizica
Vanzare/Inchiriere: Inchiriere
Suprafata utila: 60 m²
Descriere
Avantaje: Vad pietonal, Vitrine, Vizibilitate crescută, Trifazic, Acces aprovizionare, Aer conditionat, Centrala proprie pe gaz, Internet mare viteza
Va oferim spre inchiriere un spațiu comercial cu potențional extraordinar, în zona esplanadei Sucevei.
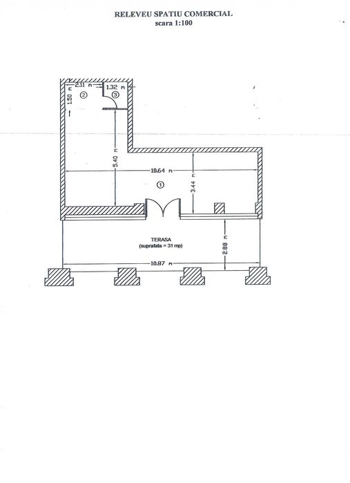
Spațiul are o suprafață utilă de 60 mp plus terasa inchisa 70mp plus vitrina inchisa sticla parter, vitrina inchisa sticla mezanin spre pietonala vitrine sticla mezanin spre prefectura. Spațiul are grup sanitar propriu si beneficiaza ca folosință de o terasă exterioară si de vitrine exteriore generoase catre pietonala si consiliul judetean care însumează o suprafață suplimentara de inca 70 mp.
Spațiul se află la mezanin, linga esplanada, ceea ce înseamnă că beneficiați de o vizibilitate ridicată și de un flux constant de potențiali clienți. Esplanada reprezintă o zonă vibrantă și tranzitată, ideală pentru afaceri.
Restricții alimentație publică: Este important de menționat că spațiul nu este potrivit pentru deschiderea unui local de alimentație publică, conform reglementărilor legale.
Suprafață generoasă, la care se adaugă o terasă și mai multe vitrine, rezultând o suprafață totală de peste 130 metri pătrați. Această dimensiune generoasă vă oferă suficient spațiu pentru desfășurarea activității dorite.
Dotări și facilități: Spațiul este format dintr-o cameră, o baie și dispune de centrală termică, pompa de caldura si aer conditionat, internet performant și sistem de alarmă, asigurându-vă confort și siguranță. De asemenea, beneficiați de o terasă pentru a putea crea un spațiu suplimentar sau pentru a oferi clienților posibilitatea de a se relaxa cu o vedere placuta catre Parcul Central, Muzeul de Stiinte ale Naturii, Catetrala Romano- Catolica si Cladirea Prefecturii si Consiliului Judetean din proximitate. Există, de asemenea un acces in spatiu din curtea interioara a cladirii din care face parte cu o rampă de încărcare pentru accesul facil al mărfurilor sau al echipamentelor.
Acces ușor și vitrine atrăgătoare: Spațiul dispune de ieșiri atât în față, cât și în spate, oferindu-vă mai multe opțiuni pentru desfășurarea activității. De asemenea, dispune de vitrine pietonale, care atrag atenția trecătorilor și pot fi folosite pentru expunerea produselor, precum și de o vitrină mare laterală, care vă oferă o vizibilitate suplimentară și posibilitatea de a vă promova afacerea.
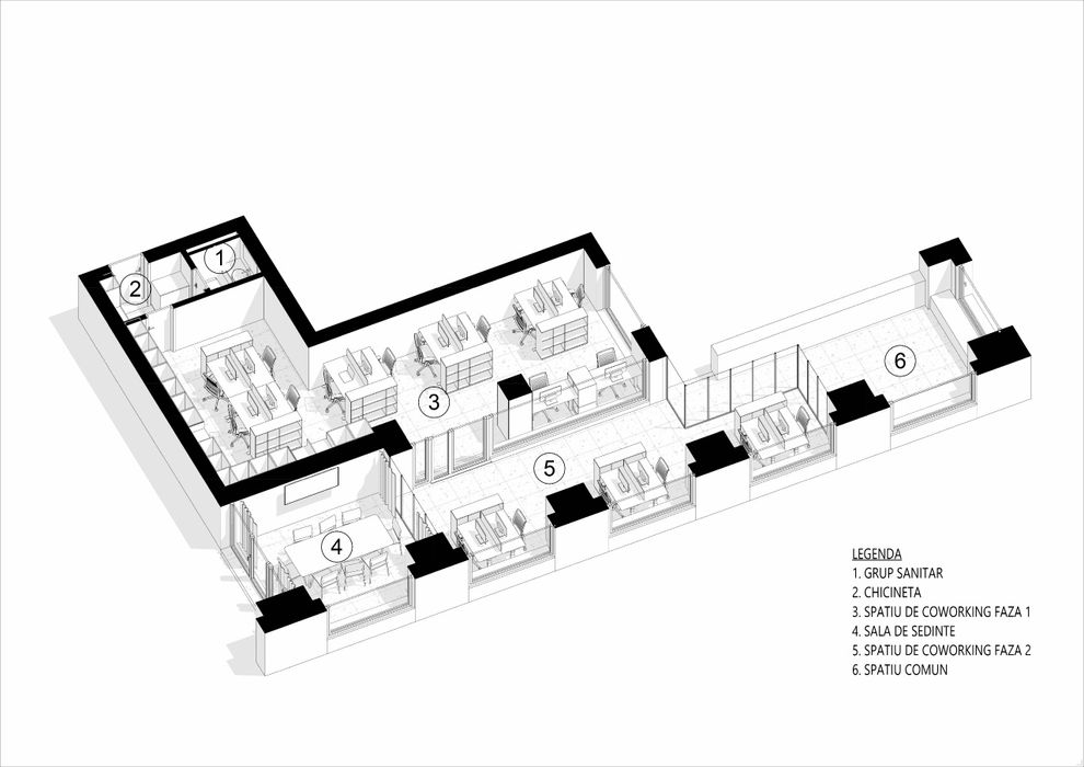
O alta varianta de utilizare a spatiului este de birouri de tip co-working pentru freelanceri, firme mici sau mari, firme de trainig, sau cursuri de pregatire profesionala, agentii de turism, firme de asigurari, IFN -uri, CAR-uri, starup-uri, etc. Conform simularilor ar exista intre 10 si 18 posturi de lucru, o sala de sedinte de 6-10 locuri, sala de cursuri sau trainig, 4-6locuri de relaxare, loc pentru imprimanta, mini bar, frigider, cuptor cu microunde, expresor cafea, ceai etc.
Colaboram si cu agentiile imobiliare interesate.
Va oferim spre inchiriere un spațiu comercial cu potențional extraordinar, în zona esplanadei Sucevei.
Spațiul are o suprafață utilă de 60 mp plus terasa inchisa 70mp plus vitrina inchisa sticla parter, vitrina inchisa sticla mezanin spre pietonala vitrine sticla mezanin spre prefectura. Spațiul are grup sanitar propriu si beneficiaza ca folosință de o terasă exterioară si de vitrine exteriore generoase catre pietonala si consiliul judetean care însumează o suprafață suplimentara de inca 70 mp.
Spațiul se află la mezanin, linga esplanada, ceea ce înseamnă că beneficiați de o vizibilitate ridicată și de un flux constant de potențiali clienți. Esplanada reprezintă o zonă vibrantă și tranzitată, ideală pentru afaceri.
Restricții alimentație publică: Este important de menționat că spațiul nu este potrivit pentru deschiderea unui local de alimentație publică, conform reglementărilor legale.
Suprafață generoasă, la care se adaugă o terasă și mai multe vitrine, rezultând o suprafață totală de peste 130 metri pătrați. Această dimensiune generoasă vă oferă suficient spațiu pentru desfășurarea activității dorite.
Dotări și facilități: Spațiul este format dintr-o cameră, o baie și dispune de centrală termică, pompa de caldura si aer conditionat, internet performant și sistem de alarmă, asigurându-vă confort și siguranță. De asemenea, beneficiați de o terasă pentru a putea crea un spațiu suplimentar sau pentru a oferi clienților posibilitatea de a se relaxa cu o vedere placuta catre Parcul Central, Muzeul de Stiinte ale Naturii, Catetrala Romano- Catolica si Cladirea Prefecturii si Consiliului Judetean din proximitate. Există, de asemenea un acces in spatiu din curtea interioara a cladirii din care face parte cu o rampă de încărcare pentru accesul facil al mărfurilor sau al echipamentelor.
Acces ușor și vitrine atrăgătoare: Spațiul dispune de ieșiri atât în față, cât și în spate, oferindu-vă mai multe opțiuni pentru desfășurarea activității. De asemenea, dispune de vitrine pietonale, care atrag atenția trecătorilor și pot fi folosite pentru expunerea produselor, precum și de o vitrină mare laterală, care vă oferă o vizibilitate suplimentară și posibilitatea de a vă promova afacerea.
O alta varianta de utilizare a spatiului este de birouri de tip co-working pentru freelanceri, firme mici sau mari, firme de trainig, sau cursuri de pregatire profesionala, agentii de turism, firme de asigurari, IFN -uri, CAR-uri, starup-uri, etc. Conform simularilor ar exista intre 10 si 18 posturi de lucru, o sala de sedinte de 6-10 locuri, sala de cursuri sau trainig, 4-6locuri de relaxare, loc pentru imprimanta, mini bar, frigider, cuptor cu microunde, expresor cafea, ceai etc.
Colaboram si cu agentiile imobiliare interesate.
ID: 263971426
Contactează vânzătorul
xxx xxx xxx
Localitate
Suceava
Suceava