Postat azi la 06:42
Spațiu comercial de închiriat – poziție excelentă, vitrină stradală
1 100 €
Persoana fizica
Vanzare/Inchiriere: Inchiriere
Suprafata utila: 56 m²
Descriere
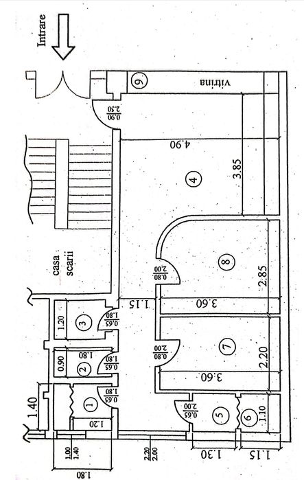
Se oferă spre închiriere spațiu comercial situat la parter, cu vizibilitate foarte bună și vitrină stradală generoasă, amplasat pe Strada Republicii nr. 35, municipiul Câmpulung, zonă centrală cu trafic pietonal intens.
Suprafață utilă totală: 56 mp, compartimentare funcțională, spațiul fiind utilizat anterior ca clinică de analize medicale, ceea ce îl face ideal pentru activități ce necesită acces facil pentru public.
Caracteristici principale:
parter, acces direct din stradă
vitrină mare, perfectă pentru branding și vizibilitate (conform fotografiei)
compartimentare eficientă: recepție/hol, săli individuale, depozitare, grupuri sanitare
pretabil pentru: clinică, cabinet medical, farmacie, birouri, servicii.
Nu se acceptă activități de tip jocuri de noroc sau alimentație publică cu preparare de mâncare.
Poziția este un avantaj major, spațiul fiind situat într-o zonă centrală, consacrată pentru activități comerciale și servicii, cu expunere excelentă la stradă.
Chirie: 1100 Euro / lună
Suprafață utilă totală: 56 mp, compartimentare funcțională, spațiul fiind utilizat anterior ca clinică de analize medicale, ceea ce îl face ideal pentru activități ce necesită acces facil pentru public.
Caracteristici principale:
parter, acces direct din stradă
vitrină mare, perfectă pentru branding și vizibilitate (conform fotografiei)
compartimentare eficientă: recepție/hol, săli individuale, depozitare, grupuri sanitare
pretabil pentru: clinică, cabinet medical, farmacie, birouri, servicii.
Nu se acceptă activități de tip jocuri de noroc sau alimentație publică cu preparare de mâncare.
Poziția este un avantaj major, spațiul fiind situat într-o zonă centrală, consacrată pentru activități comerciale și servicii, cu expunere excelentă la stradă.
Chirie: 1100 Euro / lună
ID: 297557967
Contactează vânzătorul
xxx xxx xxx
Localitate
Campulung
Arges