Postat 10 martie 2026
Spațiu comercial de închiriat - 170mp.
10 €
Prețul e negociabil
Persoana fizica
Vanzare/Inchiriere: Inchiriere
Suprafata utila: 170 m²
Descriere
Ofer spre închiriere un spațiu comercial recent renovat, cu o suprafață generoasă de 170 mp, amplasat central, la drumul principal, pe strada George Coșbuc, într-o zonă cu trafic intens și vizibilitate excelentă – ideal pentru magazin, showroom, clinică medicală, spațiu de birouri, sală de sport sau alte activități comerciale.
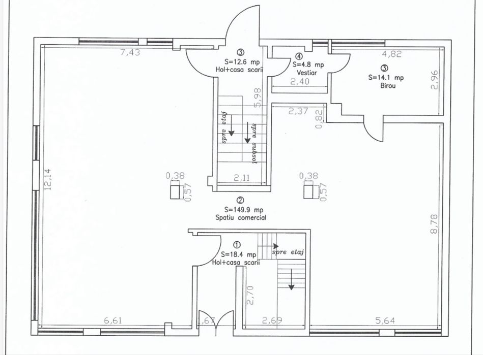
Principalele caracteristici ale acestui spatiu sunt:
-Suprafață utilă:
- Spațiu comercial : 150 mp;
- Birou : 15 mp;
- Vestiar : 5 mp;
-Înălțime interioară: 3 metri;
-Spațiu open-space;
-Fațadă vitrată pe toată lungimea spațiului către stradă – oferă luminozitate naturală și expunere vizuală excelentă;
Include: birou separat, vestiar și grup sanitar (toaletă);
-Curte interioară cu acces separat, cu deschidere mare pentru accesul autovehiculelor de marfă și rampă pentru operațiunile de încărcare/descărcare;
-Spațiu de depozitare la subsol cu suprafață de 100-200 mp.– perfect pentru stocuri sau logistică(se închiriază separat);
-Instalații electrice și sanitare noi, sistem de încălzire nou, cu centrală termică recent instalată;
-Acces pietonal facil;
-Amplasare ideală pentru atragerea clienților, având locuri de parcare și stația de autobuz în fața clădirii;
De asemenea, închirierea se face pe firmă, cu factură emisă lunar atât pentru chirie, cât și pentru utilități. Spațiul este gata de utilizare imediat, fără investiții suplimentare.
Pentru mai multe informații, detalii, preț sau pentru a programa o vizionare, va stau la dispoziție.
Principalele caracteristici ale acestui spatiu sunt:
-Suprafață utilă:
- Spațiu comercial : 150 mp;
- Birou : 15 mp;
- Vestiar : 5 mp;
-Înălțime interioară: 3 metri;
-Spațiu open-space;
-Fațadă vitrată pe toată lungimea spațiului către stradă – oferă luminozitate naturală și expunere vizuală excelentă;
Include: birou separat, vestiar și grup sanitar (toaletă);
-Curte interioară cu acces separat, cu deschidere mare pentru accesul autovehiculelor de marfă și rampă pentru operațiunile de încărcare/descărcare;
-Spațiu de depozitare la subsol cu suprafață de 100-200 mp.– perfect pentru stocuri sau logistică(se închiriază separat);
-Instalații electrice și sanitare noi, sistem de încălzire nou, cu centrală termică recent instalată;
-Acces pietonal facil;
-Amplasare ideală pentru atragerea clienților, având locuri de parcare și stația de autobuz în fața clădirii;
De asemenea, închirierea se face pe firmă, cu factură emisă lunar atât pentru chirie, cât și pentru utilități. Spațiul este gata de utilizare imediat, fără investiții suplimentare.
Pentru mai multe informații, detalii, preț sau pentru a programa o vizionare, va stau la dispoziție.
ID: 287603514
Contactează vânzătorul
xxx xxx xxx
Localitate
Nasaud
Bistrita-Nasaud