Reactualizat la 13 martie 2026
Spațiu comercial birouri 105 mp, Pipera Emil Racovita
199 999 €
Persoana fizica
Vanzare/Inchiriere: Vanzare
Suprafata utila: 105 m²
Descriere
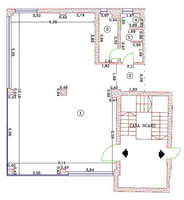
Proprietar, vand un spațiu comercial de birouri de 105 mp utili reprezentand jumatate din etajul 1 al unui imobil construit în 2008.
Spatiul are vizibilitate stradala foarte buna, este luminos si are inaltime de 3.2 m.
Este ideal pentru: sala de fitness, sala de dans, centru educational, sala de canto, sala de sport, salon infrumusetare, spatiu office, activati profesionale - cabinet notarial, avocat etc.
Spatiul dispune de: aer conditionat, incalzire centralizata, alarma, 2 grupuri sanitare.
Cladirea este situata stradal pe strada Emil Racovita nr 35-39, are vizibilitate excelenta, trafic pietonal si auto intens pe tot parcursul zilei.
Spatiul este localizat foarte aproape de rond OMV Pipera, Autostrada A3, LEMON Park, Stadionul Voluntari.
În plus, transportul public este accesibil, cu stații de autobuz chiar in fata cladirii.
Dacă te interesează să afli mai multe, contactează-mă pentru detalii !
Spatiul are vizibilitate stradala foarte buna, este luminos si are inaltime de 3.2 m.
Este ideal pentru: sala de fitness, sala de dans, centru educational, sala de canto, sala de sport, salon infrumusetare, spatiu office, activati profesionale - cabinet notarial, avocat etc.
Spatiul dispune de: aer conditionat, incalzire centralizata, alarma, 2 grupuri sanitare.
Cladirea este situata stradal pe strada Emil Racovita nr 35-39, are vizibilitate excelenta, trafic pietonal si auto intens pe tot parcursul zilei.
Spatiul este localizat foarte aproape de rond OMV Pipera, Autostrada A3, LEMON Park, Stadionul Voluntari.
În plus, transportul public este accesibil, cu stații de autobuz chiar in fata cladirii.
Dacă te interesează să afli mai multe, contactează-mă pentru detalii !
ID: 297434061
Contactează vânzătorul
xxx xxx xxx
Localitate
Bucuresti, Sectorul 2
Bucuresti - Ilfov