Postat 07 martie 2026
Spatiu Comercial,
1 020 €
Firma
Vanzare/Inchiriere: Inchiriere
Suprafata utila: 68 m²
Descriere
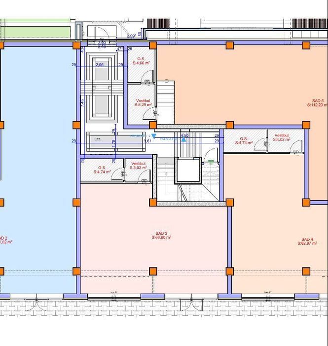
Oferim spre închiriere un spațiu comercial modern de 68,60 mp, situat la parterul unui ansamblu rezidențial nou, în zona Torontal din Timișoara – una dintre cele mai dinamice zone rezidențiale în plină expansiune.
Spațiul este livrat Core & Shell, oferind libertate totală de amenajare conform profilului afacerii tale: retail, servicii, showroom, food & beverage sau birouri. Un avantaj important: instalațiile de încălzire și răcire sunt deja montate, reducând considerabil costurile de fit-out.
Tâmplăria vitrate asigură vizibilitate excelentă spre stradă, esențială pentru orice afacere orientată spre clienți. Clădire nouă, cu finisaje moderne, trafic rezidențial în creștere și acces facil la mijloacele de transport în comun.
Caracteristici principale:
- Core & Shell – fit-out complet personalizabil
- Echipamente de încălzire & răcire deja montate
- Vestibul propriu de acces
- Grup sanitar propriu
- Tâmplărie vitrate – vizibilitate maximă spre stradă
- Parcare disponibilă în incintă
- Acces facil la transport public
- Clădire nouă, finisaje moderne
- Zonă rezidențială în plină dezvoltare
Suprafețe:
- Spațiu principal: 68,60 mp
- Vestibul: 4,74 mp
- Grup sanitar: 3,02 mp
- Total arie utilă: ~76,36 mp
Prețul chiriei: 1.029 €/lună + TVA (negociabil pentru contracte pe termen lung)
Iconic Properties – (folosesti formularul de contact)
Vizionări prin programare. Sunați-ne pentru detalii suplimentare!
Spațiul este livrat Core & Shell, oferind libertate totală de amenajare conform profilului afacerii tale: retail, servicii, showroom, food & beverage sau birouri. Un avantaj important: instalațiile de încălzire și răcire sunt deja montate, reducând considerabil costurile de fit-out.
Tâmplăria vitrate asigură vizibilitate excelentă spre stradă, esențială pentru orice afacere orientată spre clienți. Clădire nouă, cu finisaje moderne, trafic rezidențial în creștere și acces facil la mijloacele de transport în comun.
Caracteristici principale:
- Core & Shell – fit-out complet personalizabil
- Echipamente de încălzire & răcire deja montate
- Vestibul propriu de acces
- Grup sanitar propriu
- Tâmplărie vitrate – vizibilitate maximă spre stradă
- Parcare disponibilă în incintă
- Acces facil la transport public
- Clădire nouă, finisaje moderne
- Zonă rezidențială în plină dezvoltare
Suprafețe:
- Spațiu principal: 68,60 mp
- Vestibul: 4,74 mp
- Grup sanitar: 3,02 mp
- Total arie utilă: ~76,36 mp
Prețul chiriei: 1.029 €/lună + TVA (negociabil pentru contracte pe termen lung)
Iconic Properties – (folosesti formularul de contact)
Vizionări prin programare. Sunați-ne pentru detalii suplimentare!
ID: 300620567
Contactează vânzătorul