Postat 17 martie 2026
Spatiu Birouri | Showroom I 71Mp I Zona Sp. Judetean
880 €
Firma
Vanzare/Inchiriere: Inchiriere
Suprafata utila: 71 m²
Descriere
Ti-a atras atentia un imobil situat in apropierea Spitalului Judetean Brasov, amplasat pe o artera cu trafic auto si pietonal intens, cu acces facil la transport public si facilitati de parcare pentru clienti.
Detalii imobil:
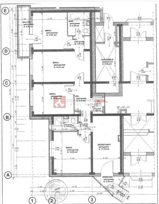
-suprafață utilă: 71 mp;
-suprafață vitrata: 2 ml;
-locuri de parcare.
Compartimentare:
-4 încăperi;
-1 hol;
-1 grup sanitar;
-inaltime utila – 2,8 m;
Utilități:
-apă și canalizare;
-energie electrică 220V;
-internet;
-gaze naturale;
-centrala proprie;
-camere de luat vederi;
-sistem de securitate.
Situatie C.F.:
Spatiu cu destinatie rezidentiala.
Disponibilitate imediata;
Durata minimă a contractului:
-12 luni.
Pentru informații și detalii suplimentare, vizionarea imobilului sau stabilirea unor detalii specifice, nu ezitați sa contactați CommerciALL Real Estate, folosind formularul de contact sau numărul de telefon asociat acestui anunț.
NOTĂ:
Reprezentantul CommerciALL Real Estate | Brașov, a efectuat vizionarea imobilului, realizând fotografii detaliate care reflectă starea actuală a acestuia.
De asemenea, a verificat documentația specifică, care va fi disponibilă ulterior, după vizionare și confirmarea interesului pentru imobil.
Pentru variante similare, accesati site-ul:
commerciall.ro
WHO. WE. ARE.
Cu o prezență solidă de peste 10 ani în ecosistemul imobiliar brașovean, suntem o companie de real estate specializată exclusiv in segmentul comercial.
Beneficiind de o rețea semnificativă de contacte și cunoștințe în piața imobiliară comercială din Brașov, suntem determinați să vă oferim oportunități unice și sprijin pentru identificarea locației perfecte, indiferent de tipul de proprietate dorit:
-spatii birouri;
-spatii comerciale;
-hoteluri și pensiuni;
-spații sau terenuri industriale.
-proprietati speciale
Oferim servicii complete de tranzacționare și consultanță imobiliară, asistând clienții în procesul de identificare urmata de închirierea sau vânzarea proprietăților comerciale existente sau a proiectelor noi.
Angajamentul nostru este să aducem inovație și expertiză în furnizarea de soluții imobiliare personalizate.
MAKE THE RIGHT CHOICE
Detalii imobil:
-suprafață utilă: 71 mp;
-suprafață vitrata: 2 ml;
-locuri de parcare.
Compartimentare:
-4 încăperi;
-1 hol;
-1 grup sanitar;
-inaltime utila – 2,8 m;
Utilități:
-apă și canalizare;
-energie electrică 220V;
-internet;
-gaze naturale;
-centrala proprie;
-camere de luat vederi;
-sistem de securitate.
Situatie C.F.:
Spatiu cu destinatie rezidentiala.
Disponibilitate imediata;
Durata minimă a contractului:
-12 luni.
Pentru informații și detalii suplimentare, vizionarea imobilului sau stabilirea unor detalii specifice, nu ezitați sa contactați CommerciALL Real Estate, folosind formularul de contact sau numărul de telefon asociat acestui anunț.
NOTĂ:
Reprezentantul CommerciALL Real Estate | Brașov, a efectuat vizionarea imobilului, realizând fotografii detaliate care reflectă starea actuală a acestuia.
De asemenea, a verificat documentația specifică, care va fi disponibilă ulterior, după vizionare și confirmarea interesului pentru imobil.
Pentru variante similare, accesati site-ul:
commerciall.ro
WHO. WE. ARE.
Cu o prezență solidă de peste 10 ani în ecosistemul imobiliar brașovean, suntem o companie de real estate specializată exclusiv in segmentul comercial.
Beneficiind de o rețea semnificativă de contacte și cunoștințe în piața imobiliară comercială din Brașov, suntem determinați să vă oferim oportunități unice și sprijin pentru identificarea locației perfecte, indiferent de tipul de proprietate dorit:
-spatii birouri;
-spatii comerciale;
-hoteluri și pensiuni;
-spații sau terenuri industriale.
-proprietati speciale
Oferim servicii complete de tranzacționare și consultanță imobiliară, asistând clienții în procesul de identificare urmata de închirierea sau vânzarea proprietăților comerciale existente sau a proiectelor noi.
Angajamentul nostru este să aducem inovație și expertiză în furnizarea de soluții imobiliare personalizate.
MAKE THE RIGHT CHOICE
ID: 301311467
Contactează vânzătorul