Postat 23 ianuarie 2026
Spatiu birouri/depozitare Paltinis
600 €
Prețul e negociabil
Persoana fizica
Descriere
Inchiriez spatiu cu destinatia de garaj ce poate fi utilizat atat ca spatiu de depozitare cat si ca spatiu de birouri, fiind potrivit pentru multiple activitati comerciale.
Caracteristici:
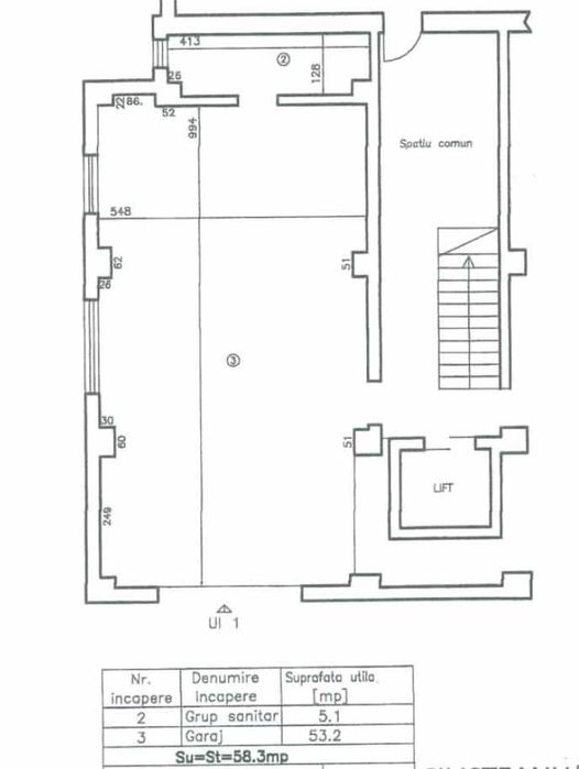
- suprafata utila: 58 m²
- an constructie: 2022
- utilitati: curent, gaz, apa, canalizare
- incalzire: centrala termica pe gaz
- aer conditionat
- inaltime 3 metri
- access: usa tip rulou actionata electric + usa + card access
Situat într-o zonă urbană, spatiul beneficiază de acces facil la transportul public.
Adresa imobil: Str Paltinis, nr. 47A
Accesul in spatiu se poate face atat prin scara interioara cat si direct din exterior - deschidere 3m
In prezent spatiul este utilizat ca si spatiu de depozitare insa poate fi folosit si ca spatiu de birouri - cu exceptia schitei din cadastru, pozele din anunt corespund spatiului vecin in care se desfasoara o activitate de birou - deoarece spatiul este ocupat in prezent, nu se pot furniza poze.
Disponibilitate: incepand cu luna februarie.
Caracteristici:
- suprafata utila: 58 m²
- an constructie: 2022
- utilitati: curent, gaz, apa, canalizare
- incalzire: centrala termica pe gaz
- aer conditionat
- inaltime 3 metri
- access: usa tip rulou actionata electric + usa + card access
Situat într-o zonă urbană, spatiul beneficiază de acces facil la transportul public.
Adresa imobil: Str Paltinis, nr. 47A
Accesul in spatiu se poate face atat prin scara interioara cat si direct din exterior - deschidere 3m
In prezent spatiul este utilizat ca si spatiu de depozitare insa poate fi folosit si ca spatiu de birouri - cu exceptia schitei din cadastru, pozele din anunt corespund spatiului vecin in care se desfasoara o activitate de birou - deoarece spatiul este ocupat in prezent, nu se pot furniza poze.
Disponibilitate: incepand cu luna februarie.
ID: 298526687
Contactează vânzătorul
xxx xxx xxx