Postat 20 octombrie 2025
Rezidențial exclusivist –3 case individuale lângă ANL Parcul Romanescu
259 000 €
Prețul e negociabil
Persoana fizica
Camere: 4 sau mai multe
Suprafata utila: 140 m²
Locuinta mobilata / utilata: Nemobilata / neutilata
Descriere
Locație premium: Strada Grigore Ureche, în spatele complexului Park Residence si ANL, la doar 20 m de strada asfaltată Dimitrie Cantemir, într-una dintre cele mai apreciate și liniștite zone rezidențiale din Craiova.
Stradă cu lățime de 9 m, acces facil și vecinătăți selecte, la câteva minute de Parcul Romanescu.
Ansamblul cuprinde 3 case individuale, dintre care una este deja vândută.
Fiecare locuință dispune de toate utilitățile.
Construcția este realizată la standarde superioare de calitate și durabilitate:
-Structură cu pereți din BCA de 25 cm (inclusiv compartimentările interioare)
-Izolație exterioară cu polistiren EPS 80 – 10 cm grosime
-Tâmplărie PVC premium cu geam tripan
-Încălzire în pardoseală pe ambele niveluri
-Centrală termică pe gaz
-Placă de beton peste etaj cu izolație din vată minerală
-Acoperiș Bilka cu sistem pluvial complet
-Alei betonate și acces auto amenajat
-Terasă acoperită fata spate
-Posibilitate de personalizare completă a finisajelor interioare și exterioare
Suprafațe
Teren: 320 mp
Suprafață construită: 170 mp
Suprafață utilă: 140 mp
Terasă acoperită: 18,7 mp
Balcon: 3,5 mp
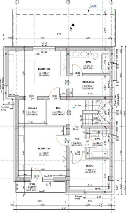
Compartimentare
Parter:
Living open-space (cu posibilitate de separare a bucătăriei)
Bucătărie cu acces direct la terasa acoperit
Dormitor / birou
Baie
Cameră tehnică
Hol + casă scării
Etaj:
Hol
Dormitor matrimonial cu baie proprie și două dressinguri
Al doilea dormitor cu baie proprie și dressing generos (poate fi transformat în birou)
Stadiu lucrări:
Etapa actuală: zidărie
Termen estimat de finalizare: august 2026
Se vinde la gata, cu finisaje moderne și materiale premium, alese de client
Avantaje:
-Doar 20 m până la strada asfaltată Dimitrie Cantemir si 5 min de mers pe jos pana la parc
-Zonă exclusivistă, liniștită și verde
-Construcție solidă, eficientă energetic
-Încălzire în pardoseală + placă beton peste etaj cu izolație din vată minerală
-Acoperiș Bilka și alei betonate
-Finisaje la alegere
-Ideală pentru familii care caută confort, calitate și intimitate
Stradă cu lățime de 9 m, acces facil și vecinătăți selecte, la câteva minute de Parcul Romanescu.
Ansamblul cuprinde 3 case individuale, dintre care una este deja vândută.
Fiecare locuință dispune de toate utilitățile.
Construcția este realizată la standarde superioare de calitate și durabilitate:
-Structură cu pereți din BCA de 25 cm (inclusiv compartimentările interioare)
-Izolație exterioară cu polistiren EPS 80 – 10 cm grosime
-Tâmplărie PVC premium cu geam tripan
-Încălzire în pardoseală pe ambele niveluri
-Centrală termică pe gaz
-Placă de beton peste etaj cu izolație din vată minerală
-Acoperiș Bilka cu sistem pluvial complet
-Alei betonate și acces auto amenajat
-Terasă acoperită fata spate
-Posibilitate de personalizare completă a finisajelor interioare și exterioare
Suprafațe
Teren: 320 mp
Suprafață construită: 170 mp
Suprafață utilă: 140 mp
Terasă acoperită: 18,7 mp
Balcon: 3,5 mp
Compartimentare
Parter:
Living open-space (cu posibilitate de separare a bucătăriei)
Bucătărie cu acces direct la terasa acoperit
Dormitor / birou
Baie
Cameră tehnică
Hol + casă scării
Etaj:
Hol
Dormitor matrimonial cu baie proprie și două dressinguri
Al doilea dormitor cu baie proprie și dressing generos (poate fi transformat în birou)
Stadiu lucrări:
Etapa actuală: zidărie
Termen estimat de finalizare: august 2026
Se vinde la gata, cu finisaje moderne și materiale premium, alese de client
Avantaje:
-Doar 20 m până la strada asfaltată Dimitrie Cantemir si 5 min de mers pe jos pana la parc
-Zonă exclusivistă, liniștită și verde
-Construcție solidă, eficientă energetic
-Încălzire în pardoseală + placă beton peste etaj cu izolație din vată minerală
-Acoperiș Bilka și alei betonate
-Finisaje la alegere
-Ideală pentru familii care caută confort, calitate și intimitate
ID: 294079971
Contactează vânzătorul
xxx xxx xxx