Reactualizat la 06 martie 2026
Refugiu autentic cu panoramă spre Baia Mare în Defileul Lăpușului
59 000 €
Prețul e negociabil
Persoana fizica
Camere: 2 camere
Suprafata utila: 84 m²
Locuinta mobilata / utilata: Nemobilata / neutilata
Descriere
Casă tradițională autentică + 6.940 mp teren + utilități, panoramă superbă, în Rezervația Naturală Defileul Lăpușului – 59.000 €
Poziționată pe deal, cu panoramă spectaculoasă spre Baia Mare, proprietatea oferă liniște totală, natură pură și un potențial real de investiție.
Detalii proprietate
– 69 ari teren
– Casă autentică din pământ bătut, an 1955
– 84 mp construiți la parter
– Posibilitate de mansardare ușor de realizat
– Prispă pe 2 laturi
– Cramă sub casă, uscată și răcoroasă
- Fundație din piatră de râu
- Acte la zi
Construcția este realizată în tehnică tradițională veche, cu pereți groși ce păstrează răcoare vara și căldură iarna.
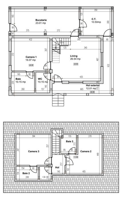
Există proiect personal (vizibil în poze) pentru:
– Parter: Living, bucătărie, dormitor, 2 băi
– Mansardă: 2 dormitoare, 2 băi
- extindere terasă si barbeque
- extindere bucătărie si cameră tehnică
Suprafața permite o compartimentare generoasă pentru casă de vacanță sau pensiune boutique.
Utilități
– Curent electric
– Apă de la rețea
– Apă prin cădere de la izvor
– 2 izvoare pe teren
– Fosă septică
– Internet fibră optică în curs de montare
– Asfalt în curs (momentan asfalt la 800 m de proprietate, restul drum pietruit bun)
Localizare
– 5 km de Copalnic
– 27 km de Baia Mare
– Aprox. 30 minute până în Baia Mare
Potențial
- Casă de vacanță
- Refugiu personal în natură
- Pensiune turistică
- Posibilitate accesare fonduri pentru renovarea caselor tradiționale
Acte la zi.
Preț 59.000 euro.
Pentru cei care caută mai mult decât o casă – un loc cu energie, tradiție și priveliște care nu poate fi replicată.
Poziționată pe deal, cu panoramă spectaculoasă spre Baia Mare, proprietatea oferă liniște totală, natură pură și un potențial real de investiție.
Detalii proprietate
– 69 ari teren
– Casă autentică din pământ bătut, an 1955
– 84 mp construiți la parter
– Posibilitate de mansardare ușor de realizat
– Prispă pe 2 laturi
– Cramă sub casă, uscată și răcoroasă
- Fundație din piatră de râu
- Acte la zi
Construcția este realizată în tehnică tradițională veche, cu pereți groși ce păstrează răcoare vara și căldură iarna.
Există proiect personal (vizibil în poze) pentru:
– Parter: Living, bucătărie, dormitor, 2 băi
– Mansardă: 2 dormitoare, 2 băi
- extindere terasă si barbeque
- extindere bucătărie si cameră tehnică
Suprafața permite o compartimentare generoasă pentru casă de vacanță sau pensiune boutique.
Utilități
– Curent electric
– Apă de la rețea
– Apă prin cădere de la izvor
– 2 izvoare pe teren
– Fosă septică
– Internet fibră optică în curs de montare
– Asfalt în curs (momentan asfalt la 800 m de proprietate, restul drum pietruit bun)
Localizare
– 5 km de Copalnic
– 27 km de Baia Mare
– Aprox. 30 minute până în Baia Mare
Potențial
- Casă de vacanță
- Refugiu personal în natură
- Pensiune turistică
- Posibilitate accesare fonduri pentru renovarea caselor tradiționale
Acte la zi.
Preț 59.000 euro.
Pentru cei care caută mai mult decât o casă – un loc cu energie, tradiție și priveliște care nu poate fi replicată.
ID: 300230825
Contactează vânzătorul
xxx xxx xxx
Localitate
Copalnic-Manastur
Maramures