Postat 25 ianuarie 2026
Proprietar vand casa zona Lidl Serbanesti
159 000 €
Prețul e negociabil
Persoana fizica
Camere: 4 sau mai multe
Suprafata utila: 160 m²
Locuinta mobilata / utilata: Complet
Descriere
Propritar vand casa situata pe strada Plaiului in Bacau.
Teren: 500 mp din care 130 mp amprenta casei, 120 mp parcare in fata casei si aproximativ 250 mp gradina cu gazon, pomi fructiferi, 2 zone de relaxare(foisor).
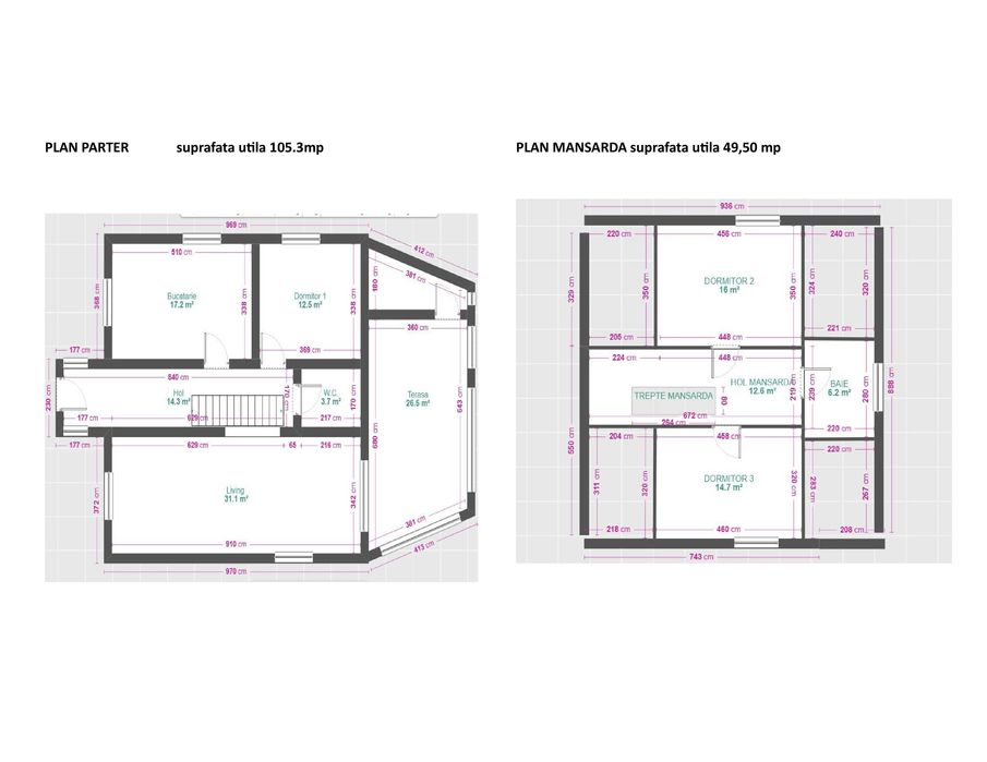
Casa are o amprenta la sol de 100 mp P+M
30mp terasa inchisa , suprafata utila aproximativ 160 mp.
Suprafete utile la parter 75 mp- bucatarie 17.40mp, living 31 mp, dormitor 12.8 mp, baie 6.2 mp, hol 14.3mp, terasa inchisa 25 mp
La mansarda sunt 2 dormitoare de 16mp si de 15mp, un hol de 17,5mp si o baie de 6,2 mp.
Proprietatea dispune de gaz, curent, apa si canalizare RAGC, acces la strada principala asfaltata si se afla la 2 minute de Lidl, MegaImage si Amato Serbanesti.
Casa a fost edificata in 2005 iar in 2021 am revonovat in totalitate - fatade, acoperis, termosistem, ferestre Rehau Barrier, centrala Viessman Vitodens 33kw, acoperis Tegola import Italia.
Casa se vinde complet mobilata, bucataria completa cu frigider Beko, aragaz si cuptor Whirlpool, masina de spalat rufe si masina spalat vase, cuptor microunde etc.
Este o achizitie ce va permite sa va mutati de a doua zi.
La cerere va pot furniza mai multe fotografii si video.
Teren: 500 mp din care 130 mp amprenta casei, 120 mp parcare in fata casei si aproximativ 250 mp gradina cu gazon, pomi fructiferi, 2 zone de relaxare(foisor).
Casa are o amprenta la sol de 100 mp P+M
30mp terasa inchisa , suprafata utila aproximativ 160 mp.
Suprafete utile la parter 75 mp- bucatarie 17.40mp, living 31 mp, dormitor 12.8 mp, baie 6.2 mp, hol 14.3mp, terasa inchisa 25 mp
La mansarda sunt 2 dormitoare de 16mp si de 15mp, un hol de 17,5mp si o baie de 6,2 mp.
Proprietatea dispune de gaz, curent, apa si canalizare RAGC, acces la strada principala asfaltata si se afla la 2 minute de Lidl, MegaImage si Amato Serbanesti.
Casa a fost edificata in 2005 iar in 2021 am revonovat in totalitate - fatade, acoperis, termosistem, ferestre Rehau Barrier, centrala Viessman Vitodens 33kw, acoperis Tegola import Italia.
Casa se vinde complet mobilata, bucataria completa cu frigider Beko, aragaz si cuptor Whirlpool, masina de spalat rufe si masina spalat vase, cuptor microunde etc.
Este o achizitie ce va permite sa va mutati de a doua zi.
La cerere va pot furniza mai multe fotografii si video.
ID: 297736498
Contactează vânzătorul
xxx xxx xxx