Navighează la conținutul principal
Chat

Notificari

Contul tău

Adaugă anunț nou
Proprietar vand casa P+M in Margineni langa Politie
Proprietar vand casa P+M in Margineni langa Politie
Proprietar vand casa P+M in Margineni langa Politie
Proprietar vand casa P+M in Margineni langa Politie
Proprietar vand casa P+M in Margineni langa Politie
Proprietar vand casa P+M in Margineni langa Politie
Proprietar vand casa P+M in Margineni langa Politie
Postat 17 martie 2026

Proprietar vand casa P+M in Margineni langa Politie

155 000 lei

PromoveazăReactualizează

Firma

Camere: 4 sau mai multe

Suprafata utila: 130 m²

Locuinta mobilata / utilata: Nemobilata / neutilata

Descriere

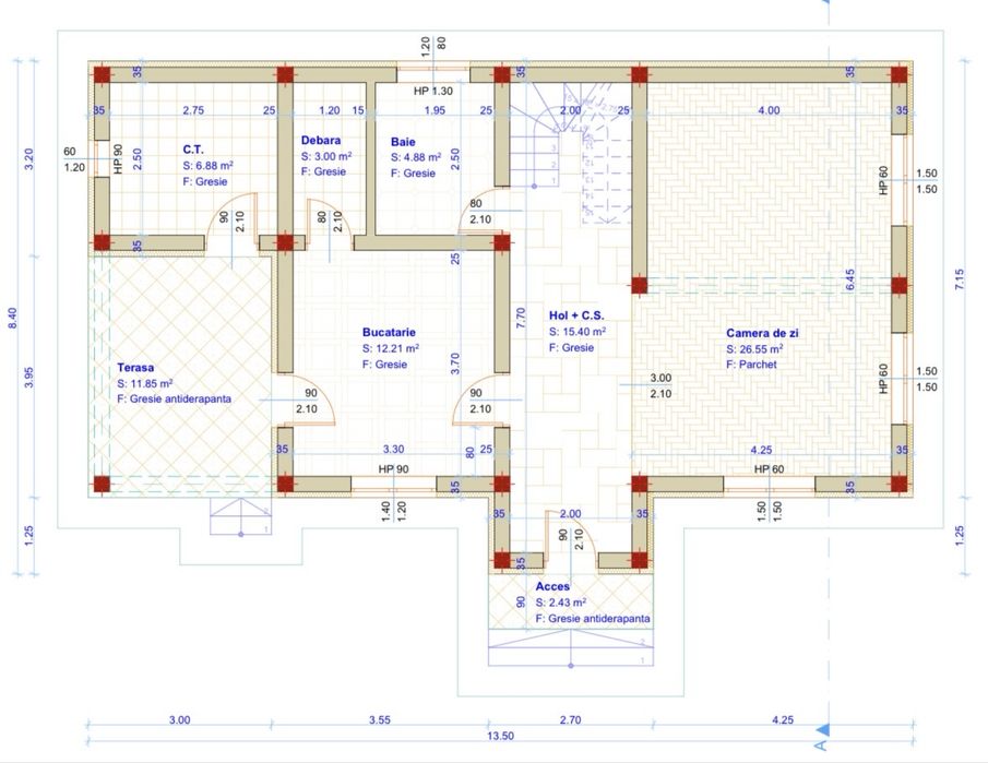
Casa P+M(la parter:living spațios, bucătărie închisă,debara,baie,hol iar la etaj 3 dormitoare,baie și dressing). Terasa cu camera centralei pe unde se face accesul în beci de 12 mp. Casa este situata in Mărgineni - vis-a-vis de Gourmet și Poliție,cu 300 mp teren.Accesul se face pe un drum privat.Casa este construită din caramida, are placa de beton peste parter, centrala termica in condensare, încălzire în pardoseala(țeava Uponor), este foarte bine izolată si are tamplarie ADF Salamander 82 (7 camere) cu 3 rânduri de sticlă.
Are toate utilitățile funcționale:apă,curent electric,gaz metan și canalizare.
Învelitoare metalică grosime 0.5 Bilka.
Băile dispun de vase Wc+bideu suspendate.
Pret 155.000 euro, TVA inclus.
Zonă foarte liniștită, foarte aproape de oraș!
Pentru mai multe detalii,discutăm telefonic sau la vizionare.
ID: 301306528

Contactează vânzătorul

Facebook connected icon

Catalin

Pe OLX din decembrie 2011

Activ pe 21 martie 2026

xxx xxx xxx

Localitate

Location

Margineni

Bacau

Descarca aplicatia pentru telefonul tau