Postat 20 noiembrie 2025
PROPRIETAR vând 1/2 duplex Moșnita, 91 mp utili
97 000 €
Prețul e negociabil
Persoana fizica
Camere: 3 camere
Suprafata utila: 91 m²
Descriere
1/2 Duplex, 3 camere, bucătărie închisă Moșnita Veche, zona Pădurea Bistra Poziție excelentă într-o zonă exclusivistă, aerisită, liniștită, fără trafic intens și ușor accesibilă, 950 m până la asfalt.
91 mp utili + teren 250 mp + terasa intrare 4 mp + terasa spate acoperita 14 mp
Parter înalt + Mansarda înaltă ( înălțimea minima mansarda 2.25 m)
Placa de beton peste parter
Izolație 10 cm ESP 80, acoperiș țiglă de beton
Încălzire în pardoseală, centrală proprie
Tâmplărie Salamander tripan gri antracit
Ușă PVC
Loc de parcare în curte
Acces cu mașina până în spatele curții
Utilități: Curent, Gaz, Apă rețea, Fosă septică , Iluminat stradal , Drumuri pietruite
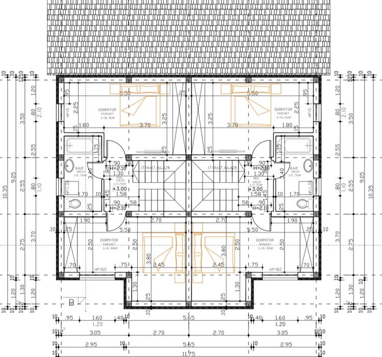
Compartimentare
Parter:
Bucătărie închisă
Living mare (32 mp) cu ieșire pe terasă
Baie cu duș
Spațiu depozitare sub scară Terasă acoperită (14 mp)
Etaj:
Dormitor 1 (17 mp).
Dormitor 2 (16 mp)
Baie cu cadă
PREȚ: 97.000 Euro gata la exterior și la Roșu la interior + Branșamente efectuate și duse la interior : Curent, Gaz, Apă rețea.
138.000 Euro la Cheie.
Telefon: 07******55
91 mp utili + teren 250 mp + terasa intrare 4 mp + terasa spate acoperita 14 mp
Parter înalt + Mansarda înaltă ( înălțimea minima mansarda 2.25 m)
Placa de beton peste parter
Izolație 10 cm ESP 80, acoperiș țiglă de beton
Încălzire în pardoseală, centrală proprie
Tâmplărie Salamander tripan gri antracit
Ușă PVC
Loc de parcare în curte
Acces cu mașina până în spatele curții
Utilități: Curent, Gaz, Apă rețea, Fosă septică , Iluminat stradal , Drumuri pietruite
Compartimentare
Parter:
Bucătărie închisă
Living mare (32 mp) cu ieșire pe terasă
Baie cu duș
Spațiu depozitare sub scară Terasă acoperită (14 mp)
Etaj:
Dormitor 1 (17 mp).
Dormitor 2 (16 mp)
Baie cu cadă
PREȚ: 97.000 Euro gata la exterior și la Roșu la interior + Branșamente efectuate și duse la interior : Curent, Gaz, Apă rețea.
138.000 Euro la Cheie.
Telefon: 07******55
ID: 295961125
Contactează vânzătorul
xxx xxx xxx
Localitate
Mosnita Noua
Timis